Представляем вам поддон для душа Radaway Kyntos C 100x100 white, с сифоном – оптимальное решение для создания стильного и удобного душевого пространства. Изготовленный из литьевого камня, он отличается невероятной прочностью и устойчивостью к износу. Универсальные возможности монтажа позволяют установить его вровень с напольной плиткой, на полу или на подиуме из кирпича и строительного раствора, что делает его идеальным выбором для любых дизайнерских задумок. Поверхность поддона легко очищается, гарантируя опрятный вид в течение длительного времени.
Почему выбирают душевые поддоны Radaway Kyntos
- Прочность и долговечность благодаря материалу из литьевого камня.
- Возможность монтажа вровень с полом для гладкого перехода.
- Антискользящее покрытие для повышенной безопасности.
- Комплектность с сифоном с гидрозатвором предотвращает распространение неприятных запахов.
- Стильный дизайн и легкость в уходе.
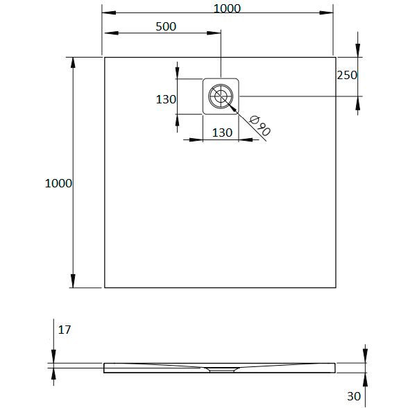
Краткая информация об изделии
- Габариты поддона: 100x100 см.
- Изготовлен из искусственного камня с внутренней глубиной 1.7 см.
- Оснащен антискользящим покрытием и предоставляется с гарантией на 3 года.
- Сифон Radaway HS1 имеет габариты 7x18 см, выполнен из пластика и нержавеющей стали с боковым выпуском и мокрым затвором.
- Диаметр слива сифона: 9 см с подсоединением к кан. трубе в 4 см и пропускной способностью 42 л/мин.
- Декоративная решетка из нержавеющей стали, размером 13x13 см, подходит только для поддонов серии Kyntos.
Что нужно знать перед покупкой
- Поддон можно установить на пол, также при необходимости можно приобрести комплект ножек для монтажа.
- Сифон уже включен в комплект поставки, обеспечивая легкость и удобство установки.
Для покупки товара в нашем интернет-магазине выберите понравившийся товар и добавьте его в корзину. Далее перейдите в Корзину и нажмите на «Оформить заказ» или «Быстрый заказ».
Когда оформляете быстрый заказ, напишите ФИО, телефон и e-mail. Вам перезвонит менеджер и уточнит условия заказа. По результатам разговора вам придет подтверждение оформления товара на почту или через СМС. Теперь останется только ждать доставки и радоваться новой покупке.
Оформление заказа в стандартном режиме выглядит следующим образом. Заполняете полностью форму по последовательным этапам: адрес, способ доставки, оплаты, данные о себе. Советуем в комментарии к заказу написать информацию, которая поможет курьеру вас найти. Нажмите кнопку «Оформить заказ».
Оплачивайте покупки удобным способом. В интернет-магазине доступно 3 варианта оплаты:
- Наличные при самовывозе или доставке курьером. Специалист свяжется с вами в день доставки, чтобы уточнить время и заранее подготовить сдачу с любой купюры. Вы подписываете товаросопроводительные документы, вносите денежные средства, получаете товар и чек.
- Безналичный расчет при самовывозе или оформлении в интернет-магазине: карты Visa и MasterCard. Чтобы оплатить покупку, система перенаправит вас на сервер системы ASSIST. Здесь нужно ввести номер карты, срок действия и имя держателя.
- Электронные системы при онлайн-заказе: PayPal, WebMoney и Яндекс.Деньги. Для совершения покупки система перенаправит вас на страницу платежного сервиса. Здесь необходимо заполнить форму по инструкции.
Экономьте время на получении заказа. В интернет-магазине доступно 4 варианта доставки:
- Курьерская доставка работает с 9.00 до 19.00. Когда товар поступит на склад, курьерская служба свяжется для уточнения деталей. Специалист предложит выбрать удобное время доставки и уточнит адрес. Осмотрите упаковку на целостность и соответствие указанной комплектации.
- Самовывоз из магазина. Список торговых точек для выбора появится в корзине. Когда заказ поступит на склад, вам придет уведомление. Для получения заказа обратитесь к сотруднику в кассовой зоне и назовите номер.
- Постамат. Когда заказ поступит на точку, на ваш телефон или e-mail придет уникальный код. Заказ нужно оплатить в терминале постамата. Срок хранения — 3 дня.
- Почтовая доставка через почту России. Когда заказ придет в отделение, на ваш адрес придет извещение о посылке. Перед оплатой вы можете оценить состояние коробки: вес, целостность. Вскрывать коробку самостоятельно вы можете только после оплаты заказа. Один заказ может содержать не больше 10 позиций и его стоимость не должна превышать 100 000 р.

































































































































