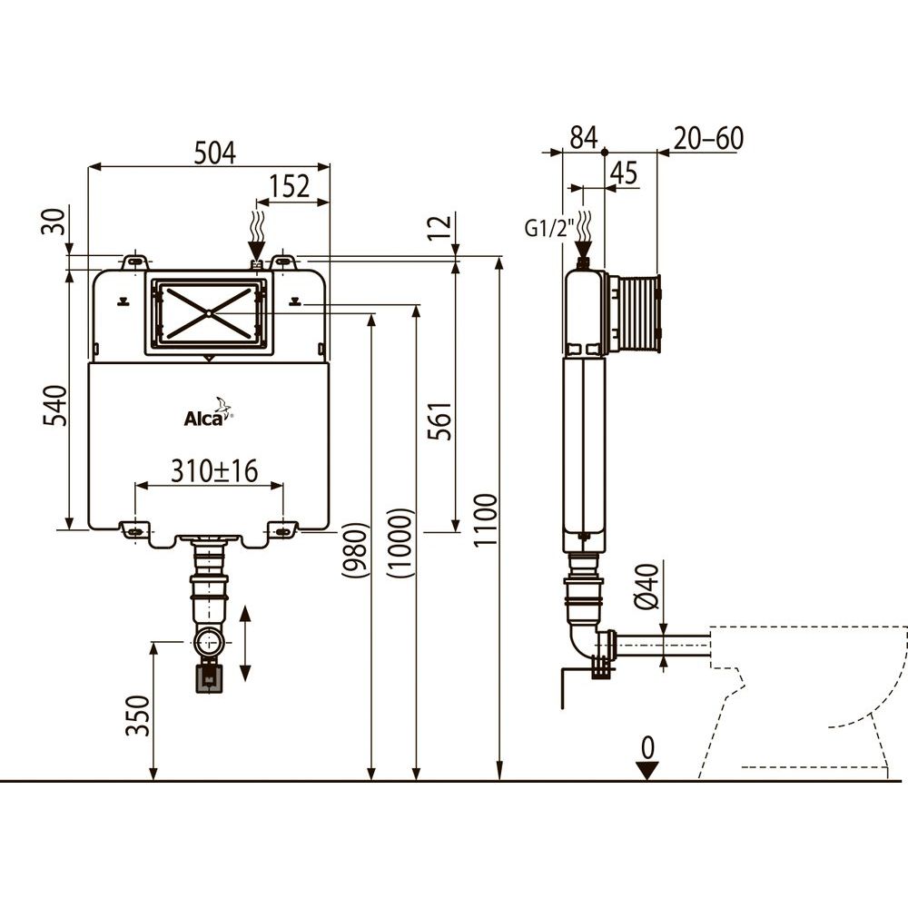
Представляем вам инновационное решение для вашего пространства ванной комнаты — смывной бачок скрытого монтажа AlcaPlast Basicmodul Slim AM1112. Это устройство идеально подходит для напольных и встроенных унитазов, обеспечивая максимальную экономию пространства благодаря минимальной монтажной глубине всего 84 мм. Система скрытого монтажа позволяет использовать ее даже в тонких гипсокартонных перегородках, при этом облицовочная плитка может быть наклеена прямо на поверхность изоляции при использовании стекловолокнистой сетки.
Почему выбирают AlcaPlast Basicmodul Slim
- Компактный размер и глубокая интеграция в стены
- Экономичный расход воды с функцией частичного и полного слива
- Чешское качество с длительным сроком гарантии
Краткая информация об изделии
Толщина изделия — всего 12 см, что делает его незаменимым для глубокой интеграции в стену. Смывной бачок обладает двумя режимами слива: 4 литра для частичного смыва и 9 литров для полного, что способствует экономии воды. Установка бачка возможна как с задней стороны, так и сверху, обеспечивая гибкость при монтаже. Размеры изделия – высота 106 см, монтажная глубина 84 мм, а надёжность системы гарантируется в течение 6 лет. Производство — Чехия.
Что нужно знать перед покупкой
При установке смывного бачка AlcaPlast Basicmodul Slim AM1112 важно учитывать особенности подключения воды — оно может быть осуществлено как с задней стены, так и сверху. Компактные размеры и функционал предполагают высокую степень адаптируемости в различных условиях, однако рекомендуется предварительная консультация со специалистом для учета всех технических параметров и обеспечения долговечной эксплуатации.
Для покупки товара в нашем интернет-магазине выберите понравившийся товар и добавьте его в корзину. Далее перейдите в Корзину и нажмите на «Оформить заказ» или «Быстрый заказ».
Когда оформляете быстрый заказ, напишите ФИО, телефон и e-mail. Вам перезвонит менеджер и уточнит условия заказа. По результатам разговора вам придет подтверждение оформления товара на почту или через СМС. Теперь останется только ждать доставки и радоваться новой покупке.
Оформление заказа в стандартном режиме выглядит следующим образом. Заполняете полностью форму по последовательным этапам: адрес, способ доставки, оплаты, данные о себе. Советуем в комментарии к заказу написать информацию, которая поможет курьеру вас найти. Нажмите кнопку «Оформить заказ».
Оплачивайте покупки удобным способом. В интернет-магазине доступно 3 варианта оплаты:
- Наличные при самовывозе или доставке курьером. Специалист свяжется с вами в день доставки, чтобы уточнить время и заранее подготовить сдачу с любой купюры. Вы подписываете товаросопроводительные документы, вносите денежные средства, получаете товар и чек.
- Безналичный расчет при самовывозе или оформлении в интернет-магазине: карты Visa и MasterCard. Чтобы оплатить покупку, система перенаправит вас на сервер системы ASSIST. Здесь нужно ввести номер карты, срок действия и имя держателя.
- Электронные системы при онлайн-заказе: PayPal, WebMoney и Яндекс.Деньги. Для совершения покупки система перенаправит вас на страницу платежного сервиса. Здесь необходимо заполнить форму по инструкции.
Экономьте время на получении заказа. В интернет-магазине доступно 4 варианта доставки:
- Курьерская доставка работает с 9.00 до 19.00. Когда товар поступит на склад, курьерская служба свяжется для уточнения деталей. Специалист предложит выбрать удобное время доставки и уточнит адрес. Осмотрите упаковку на целостность и соответствие указанной комплектации.
- Самовывоз из магазина. Список торговых точек для выбора появится в корзине. Когда заказ поступит на склад, вам придет уведомление. Для получения заказа обратитесь к сотруднику в кассовой зоне и назовите номер.
- Постамат. Когда заказ поступит на точку, на ваш телефон или e-mail придет уникальный код. Заказ нужно оплатить в терминале постамата. Срок хранения — 3 дня.
- Почтовая доставка через почту России. Когда заказ придет в отделение, на ваш адрес придет извещение о посылке. Перед оплатой вы можете оценить состояние коробки: вес, целостность. Вскрывать коробку самостоятельно вы можете только после оплаты заказа. Один заказ может содержать не больше 10 позиций и его стоимость не должна превышать 100 000 р.

































































































































