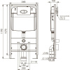
Система инсталляции для унитазов EWRIKA ProLT 0026-2020 создана для тех, кто стремится к функциональному и эстетичному решению для обустройства санузла. Эта модель сочетает компактные размеры с высокой надежностью и функциональностью. С монтажными габаритами всего 10×107 см устройство легко интегрируется в любое пространство. Встроенный смывной бачок, оснащенный особым механизмом водонабора, работает практически бесшумно и эффективно справляется с перепадами температуры. Система двойного слива позволяет выбирать между экономным (3 л) и полным (6 л) смывом, предоставляя отличную возможность экономии воды.
Почему выбирают инсталляции EWRIKA ProLT
- Надежность: выдерживает нагрузку до 400 кг.
- Тишина: инновационная шумоизоляция минимизирует шум воды.
- Универсальность: совместима с любыми подвесными унитазами.
- Легкость установки: поставляется в собранном виде.
Краткая информация об изделии
Установка инсталляции происходит на капитальную стену и пол благодаря крепкой монтажной раме. В зависимости от предпочтений можно отрегулировать высоту унитаза с помощью регулируемых ножек, которые позволяют настроить высоту от 0 до 200 мм. Важной особенностью является подвод воды сверху и наличие смывного бачка объемом 3 и 6 литров. Установка снабжена функциями защиты от конденсата и снижения уровня шума. Межосевое расстояние под крепежные шпильки составляет 18/23 см, а диаметр слива — 9 см. Гарантированное качество подтверждается пятилетней гарантией от производителя из Турции.
Что нужно знать перед покупкой
Обратите внимание, что для максимальной шумоизоляции потребуется отдельно приобрести звукоизолирующую прокладку. Оставьте свои заботы позади, так как смывной бачок уже входит в комплект поставки.
Для покупки товара в нашем интернет-магазине выберите понравившийся товар и добавьте его в корзину. Далее перейдите в Корзину и нажмите на «Оформить заказ» или «Быстрый заказ».
Когда оформляете быстрый заказ, напишите ФИО, телефон и e-mail. Вам перезвонит менеджер и уточнит условия заказа. По результатам разговора вам придет подтверждение оформления товара на почту или через СМС. Теперь останется только ждать доставки и радоваться новой покупке.
Оформление заказа в стандартном режиме выглядит следующим образом. Заполняете полностью форму по последовательным этапам: адрес, способ доставки, оплаты, данные о себе. Советуем в комментарии к заказу написать информацию, которая поможет курьеру вас найти. Нажмите кнопку «Оформить заказ».
Оплачивайте покупки удобным способом. В интернет-магазине доступно 3 варианта оплаты:
- Наличные при самовывозе или доставке курьером. Специалист свяжется с вами в день доставки, чтобы уточнить время и заранее подготовить сдачу с любой купюры. Вы подписываете товаросопроводительные документы, вносите денежные средства, получаете товар и чек.
- Безналичный расчет при самовывозе или оформлении в интернет-магазине: карты Visa и MasterCard. Чтобы оплатить покупку, система перенаправит вас на сервер системы ASSIST. Здесь нужно ввести номер карты, срок действия и имя держателя.
- Электронные системы при онлайн-заказе: PayPal, WebMoney и Яндекс.Деньги. Для совершения покупки система перенаправит вас на страницу платежного сервиса. Здесь необходимо заполнить форму по инструкции.
Экономьте время на получении заказа. В интернет-магазине доступно 4 варианта доставки:
- Курьерская доставка работает с 9.00 до 19.00. Когда товар поступит на склад, курьерская служба свяжется для уточнения деталей. Специалист предложит выбрать удобное время доставки и уточнит адрес. Осмотрите упаковку на целостность и соответствие указанной комплектации.
- Самовывоз из магазина. Список торговых точек для выбора появится в корзине. Когда заказ поступит на склад, вам придет уведомление. Для получения заказа обратитесь к сотруднику в кассовой зоне и назовите номер.
- Постамат. Когда заказ поступит на точку, на ваш телефон или e-mail придет уникальный код. Заказ нужно оплатить в терминале постамата. Срок хранения — 3 дня.
- Почтовая доставка через почту России. Когда заказ придет в отделение, на ваш адрес придет извещение о посылке. Перед оплатой вы можете оценить состояние коробки: вес, целостность. Вскрывать коробку самостоятельно вы можете только после оплаты заказа. Один заказ может содержать не больше 10 позиций и его стоимость не должна превышать 100 000 р.

































































































































