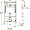
Система инсталляции для унитазов EWRIKA ProLT 0026–2020 - это ваш надежный соратник в создании современного и эстетичного санузла. Спроектированная с умом, эта инсталляция занимает минимум пространства благодаря компактным габаритам всего 10×107 см. Особое внимание уделено комфорту — встроенный смывной бачок защищен от конденсата и минимизирует шум при наполнении водой за счет инновационного механизма. Двойной режим смыва, регулируемый в диапазоне от 3 до 6 литров, обеспечит экономное потребление воды, а стильная кнопка смыва с матовым золотым покрытием станет акцентом любого интерьера.
Почему выбирают EWRIKA ProLT 0026-2020
- Выдерживает нагрузку до 400 кг, обеспечивая устойчивость и безопасность.
- Эффективное снижение шума и экономия воды благодаря интеллектуальной конструкции.
- Легкая установка - поставляется в собранном виде.
- Регулируемая высота ножек для удобной адаптации к вашему санузлу.
Краткая информация об изделии
Эта инсталляция крепится к капитальной стене и полу, обеспечивая устойчивое удержание конструкции. Компактные размеры установки - монтажная высота 107 см и глубина всего 10 см, идеально вписываются в любой интерьер. В смывном бачке предусмотрена двухрежимная система смыва - на 3 и 6 литров, которая позволяет выбрать наиболее подходящий режим использования. Монтажная рама вмещает унитазы всех подвесных типов благодаря настраиваемому межосевому расстоянию 18-23 см. К кнопке слива, выполненной из стойкого к царапинам термопласта, не требуется подвод электричества — она механическая и отвечает за полный контроль при нажатии.
Что нужно знать перед покупкой
Советуем заранее приобрести звукоизолирующую прокладку, которая позволит еще больше снизить уровень шума в вашем санузле. В комплекте с инсталляцией идет смывной бачок и стильная кнопка смыва, что делает данный продукт полностью готовым к установке и эксплуатации. Установив EWRIKA ProLT 0026-2020, вы получите качественный продукт турецкого производства с гарантией на 5 лет.
Для покупки товара в нашем интернет-магазине выберите понравившийся товар и добавьте его в корзину. Далее перейдите в Корзину и нажмите на «Оформить заказ» или «Быстрый заказ».
Когда оформляете быстрый заказ, напишите ФИО, телефон и e-mail. Вам перезвонит менеджер и уточнит условия заказа. По результатам разговора вам придет подтверждение оформления товара на почту или через СМС. Теперь останется только ждать доставки и радоваться новой покупке.
Оформление заказа в стандартном режиме выглядит следующим образом. Заполняете полностью форму по последовательным этапам: адрес, способ доставки, оплаты, данные о себе. Советуем в комментарии к заказу написать информацию, которая поможет курьеру вас найти. Нажмите кнопку «Оформить заказ».
Оплачивайте покупки удобным способом. В интернет-магазине доступно 3 варианта оплаты:
- Наличные при самовывозе или доставке курьером. Специалист свяжется с вами в день доставки, чтобы уточнить время и заранее подготовить сдачу с любой купюры. Вы подписываете товаросопроводительные документы, вносите денежные средства, получаете товар и чек.
- Безналичный расчет при самовывозе или оформлении в интернет-магазине: карты Visa и MasterCard. Чтобы оплатить покупку, система перенаправит вас на сервер системы ASSIST. Здесь нужно ввести номер карты, срок действия и имя держателя.
- Электронные системы при онлайн-заказе: PayPal, WebMoney и Яндекс.Деньги. Для совершения покупки система перенаправит вас на страницу платежного сервиса. Здесь необходимо заполнить форму по инструкции.
Экономьте время на получении заказа. В интернет-магазине доступно 4 варианта доставки:
- Курьерская доставка работает с 9.00 до 19.00. Когда товар поступит на склад, курьерская служба свяжется для уточнения деталей. Специалист предложит выбрать удобное время доставки и уточнит адрес. Осмотрите упаковку на целостность и соответствие указанной комплектации.
- Самовывоз из магазина. Список торговых точек для выбора появится в корзине. Когда заказ поступит на склад, вам придет уведомление. Для получения заказа обратитесь к сотруднику в кассовой зоне и назовите номер.
- Постамат. Когда заказ поступит на точку, на ваш телефон или e-mail придет уникальный код. Заказ нужно оплатить в терминале постамата. Срок хранения — 3 дня.
- Почтовая доставка через почту России. Когда заказ придет в отделение, на ваш адрес придет извещение о посылке. Перед оплатой вы можете оценить состояние коробки: вес, целостность. Вскрывать коробку самостоятельно вы можете только после оплаты заказа. Один заказ может содержать не больше 10 позиций и его стоимость не должна превышать 100 000 р.

































































































































