Система инсталляции для унитазов IDDIS Optima Home OPH0000i32K — это идеальное решение для тех, кто ценит функциональность и стиль в своем интерьере. Эта модель обеспечивает надежное крепление унитаза к капитальной стене и полу, гарантируя долговечную и устойчивую работу вашей сантехники. Белая механическая кнопка для смыва гармонично впишется в любой дизайн ванной комнаты, добавляя ей современности и изящества.
Почему выбирают системы инсталляции IDDIS Optima Home
- Двойной экономичный слив: возможность выбора между полным и частичным сливом объемом 6 и 3 литра соответственно, что помогает существенно сократить потребление воды.
- Удобство монтажа: благодаря монтажной глубине в 20 см и высоте в 114 см, установка занимает минимальное количество пространства, подходя даже для небольших помещений.
- Надежность и долговечность: производитель предоставляет гарантию на 10 лет, что подтверждает высокое качество продукции.
- Продуманная конструкция: система поставляется в комплекте со смывным бачком и кнопкой смыва, упрощая процесс выбора и установки.
Краткая информация об изделии
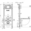
Система инсталляции IDDIS Optima Home OPH0000i32K крепится к капитальной стене и полу для обеспечения максимальной устойчивости и безопасности. Ее механическая кнопка смыва поддерживает два режима: полный слив объемом 6 литров и частичный — 3 литра. Подвод воды осуществляется сверху, что позволяет экономить место и способствует удобной установке. Монтажная глубина составляет 20 см, а высота — 114 см, с межосевым расстоянием под крепежные шпильки 18 или 23 см.
Что нужно знать перед покупкой
Для установки этой системы инсталляции необходимо приобрести звукоизолирующую прокладку отдельно, так как она не входит в комплект. Однако в набор уже включены смывной бачок и кнопка смыва, обеспечивающие минимизацию затрат на дополнительные элементы. Учтите, что правильная установка требует соблюдения всех инструкций по монтажу для гарантии безопасной и безупречной эксплуатации.
Для покупки товара в нашем интернет-магазине выберите понравившийся товар и добавьте его в корзину. Далее перейдите в Корзину и нажмите на «Оформить заказ» или «Быстрый заказ».
Когда оформляете быстрый заказ, напишите ФИО, телефон и e-mail. Вам перезвонит менеджер и уточнит условия заказа. По результатам разговора вам придет подтверждение оформления товара на почту или через СМС. Теперь останется только ждать доставки и радоваться новой покупке.
Оформление заказа в стандартном режиме выглядит следующим образом. Заполняете полностью форму по последовательным этапам: адрес, способ доставки, оплаты, данные о себе. Советуем в комментарии к заказу написать информацию, которая поможет курьеру вас найти. Нажмите кнопку «Оформить заказ».
Оплачивайте покупки удобным способом. В интернет-магазине доступно 3 варианта оплаты:
- Наличные при самовывозе или доставке курьером. Специалист свяжется с вами в день доставки, чтобы уточнить время и заранее подготовить сдачу с любой купюры. Вы подписываете товаросопроводительные документы, вносите денежные средства, получаете товар и чек.
- Безналичный расчет при самовывозе или оформлении в интернет-магазине: карты Visa и MasterCard. Чтобы оплатить покупку, система перенаправит вас на сервер системы ASSIST. Здесь нужно ввести номер карты, срок действия и имя держателя.
- Электронные системы при онлайн-заказе: PayPal, WebMoney и Яндекс.Деньги. Для совершения покупки система перенаправит вас на страницу платежного сервиса. Здесь необходимо заполнить форму по инструкции.
Экономьте время на получении заказа. В интернет-магазине доступно 4 варианта доставки:
- Курьерская доставка работает с 9.00 до 19.00. Когда товар поступит на склад, курьерская служба свяжется для уточнения деталей. Специалист предложит выбрать удобное время доставки и уточнит адрес. Осмотрите упаковку на целостность и соответствие указанной комплектации.
- Самовывоз из магазина. Список торговых точек для выбора появится в корзине. Когда заказ поступит на склад, вам придет уведомление. Для получения заказа обратитесь к сотруднику в кассовой зоне и назовите номер.
- Постамат. Когда заказ поступит на точку, на ваш телефон или e-mail придет уникальный код. Заказ нужно оплатить в терминале постамата. Срок хранения — 3 дня.
- Почтовая доставка через почту России. Когда заказ придет в отделение, на ваш адрес придет извещение о посылке. Перед оплатой вы можете оценить состояние коробки: вес, целостность. Вскрывать коробку самостоятельно вы можете только после оплаты заказа. Один заказ может содержать не больше 10 позиций и его стоимость не должна превышать 100 000 р.

































































































































