Система инсталляции для унитазов TECE Profil TECEprofil Uni 2.0 с кнопкой смыва TECE Loop — это инновационное решение для вашего санузла, объединяющее практичность и стиль. Лаконичный дизайн и высокое качество сборки гарантируют долговечность использования, а комплектность облегчает установку и эксплуатацию.
Почему выбирают инсталляции TECE Profil
- Немецкая надежность и долговечность — 10 лет гарантии на инсталляцию.
- Экономия воды благодаря двухрежимному сливу.
- Эстетичный дизайн с черной глянцевой кнопкой смыва TECE Loop.
- Легкая установка под разные условия подключения воды.
Краткая информация об изделии
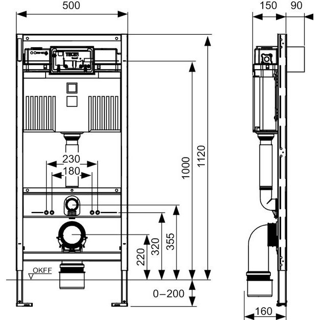
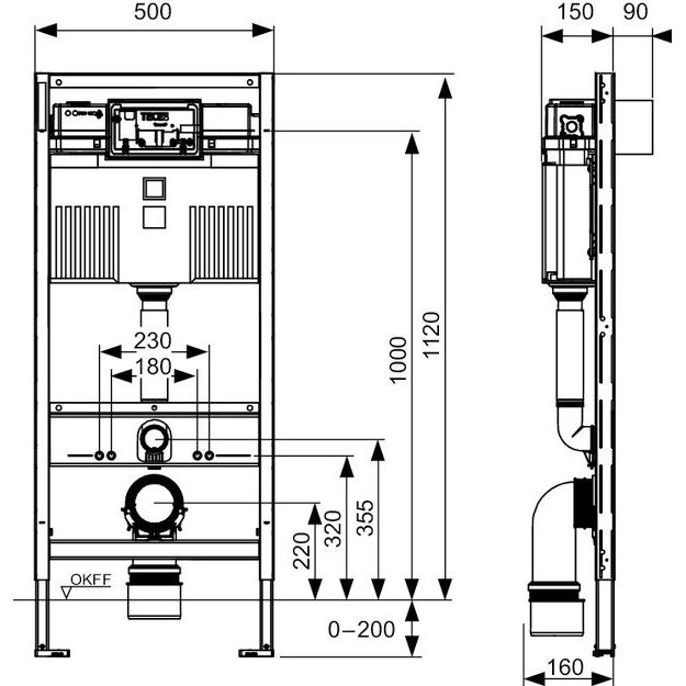
Система инсталляции TECEprofil Uni 2.0 крепится надежно в капитальную стену и пол. Она оснащена смывным бачком объемом 3-4.5; 3-7.5; 3-9 и 3-6 литра, позволяющим выбрать оптимальный режим для экономии воды. Слив диаметров 9 см обеспечивает эффективный отвод воды. Глубина монтажа составляет 18 см при высоте 112 см. Межосевое расстояние под крепежные шпильки — 18 и 23 см, что позволяет гибкость установки. Подвод воды может быть как сверху, так и сбоку.
Кнопка смыва TECE Loop выполнена из пластика и имеет размеры 22x15 см, с глубиной 0.5 см, что делает её удобной и малозаметной в интерьере. Гарантия на кнопку составляет 2 года.
Что нужно знать перед покупкой
Обратите внимание, что для полной звукоизоляции система требует дополнительной звукоизолирующей прокладки, которая приобретается отдельно. Если вы планируете интегрировать систему отвода воздуха, потребуется покупка впускного патрубка для подключения к вентиляции и выполнение монтажных работ. Для автоматического дезодорирования рекомендуем приобрести крышку с контейнером под гигиенические таблетки TECEprofil 9 240 950. Однако в комплекте уже идут смывной бачок и кнопка смыва, поэтому вы получите все необходимое для базовой установки.
Для покупки товара в нашем интернет-магазине выберите понравившийся товар и добавьте его в корзину. Далее перейдите в Корзину и нажмите на «Оформить заказ» или «Быстрый заказ».
Когда оформляете быстрый заказ, напишите ФИО, телефон и e-mail. Вам перезвонит менеджер и уточнит условия заказа. По результатам разговора вам придет подтверждение оформления товара на почту или через СМС. Теперь останется только ждать доставки и радоваться новой покупке.
Оформление заказа в стандартном режиме выглядит следующим образом. Заполняете полностью форму по последовательным этапам: адрес, способ доставки, оплаты, данные о себе. Советуем в комментарии к заказу написать информацию, которая поможет курьеру вас найти. Нажмите кнопку «Оформить заказ».
Оплачивайте покупки удобным способом. В интернет-магазине доступно 3 варианта оплаты:
- Наличные при самовывозе или доставке курьером. Специалист свяжется с вами в день доставки, чтобы уточнить время и заранее подготовить сдачу с любой купюры. Вы подписываете товаросопроводительные документы, вносите денежные средства, получаете товар и чек.
- Безналичный расчет при самовывозе или оформлении в интернет-магазине: карты Visa и MasterCard. Чтобы оплатить покупку, система перенаправит вас на сервер системы ASSIST. Здесь нужно ввести номер карты, срок действия и имя держателя.
- Электронные системы при онлайн-заказе: PayPal, WebMoney и Яндекс.Деньги. Для совершения покупки система перенаправит вас на страницу платежного сервиса. Здесь необходимо заполнить форму по инструкции.
Экономьте время на получении заказа. В интернет-магазине доступно 4 варианта доставки:
- Курьерская доставка работает с 9.00 до 19.00. Когда товар поступит на склад, курьерская служба свяжется для уточнения деталей. Специалист предложит выбрать удобное время доставки и уточнит адрес. Осмотрите упаковку на целостность и соответствие указанной комплектации.
- Самовывоз из магазина. Список торговых точек для выбора появится в корзине. Когда заказ поступит на склад, вам придет уведомление. Для получения заказа обратитесь к сотруднику в кассовой зоне и назовите номер.
- Постамат. Когда заказ поступит на точку, на ваш телефон или e-mail придет уникальный код. Заказ нужно оплатить в терминале постамата. Срок хранения — 3 дня.
- Почтовая доставка через почту России. Когда заказ придет в отделение, на ваш адрес придет извещение о посылке. Перед оплатой вы можете оценить состояние коробки: вес, целостность. Вскрывать коробку самостоятельно вы можете только после оплаты заказа. Один заказ может содержать не больше 10 позиций и его стоимость не должна превышать 100 000 р.

































































































































