Добро пожаловать в мир стильных и функциональных решений для ванной комнаты. Комплект биде BOCCHI V-Tondo в сочетании с инсталляцией AlcaPlast A105/1120 предлагает современную эстетику и технологичность. Благодаря своим инновационным характеристикам, этот набор удовлетворит даже самых требовательных покупателей, обеспечив максимальный комфорт и удобство использования.
Почему выбирают инсталляции с биде от AlcaPlast и BOCCHI
- Надежность и прочность конструкции: крепление к капитальной стене и полу для долгого срока службы.
- Итальянский дизайн и технологии от BOCCHI с антигрязевым и антибактериальным покрытием.
- Система слив-перелив уже в комплекте, что упрощает установку.
- Гарантия от производителя: 6 лет на инсталляцию и 10 лет на биде.
Краткая информация об изделии
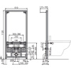
Инсталляция AlcaPlast A105/1120 предназначена для монтажа в капитальную стену и пол, имеет монтажную глубину 19.5 см и высоту 112 см. Разработка насадок под крепежные шпильки допускает расстояние 18/23 см, а диаметр слива составляет 5 см.
Подвесное биде BOCCHI V-Tondo с габаритами 36x49 см выполнено из качественного фарфора. Оно предусматривает наличие встроенного слива-перелива для защиты от переполнения, а диаметр слива равен 4.5 см. Биде оснащено антигрязевым и антибактериальным покрытиями для уменьшения частоты уборок.
Что нужно знать перед покупкой
Обратите внимание, что слив-перелив уже входит в комплект, однако донный клапан необходимо приобрести отдельно. Убедитесь, что ваша ванная комната подготовлена для установки этой высокотехнологичной системы, и что у вас есть все необходимые элементы для монтажа.
Для покупки товара в нашем интернет-магазине выберите понравившийся товар и добавьте его в корзину. Далее перейдите в Корзину и нажмите на «Оформить заказ» или «Быстрый заказ».
Когда оформляете быстрый заказ, напишите ФИО, телефон и e-mail. Вам перезвонит менеджер и уточнит условия заказа. По результатам разговора вам придет подтверждение оформления товара на почту или через СМС. Теперь останется только ждать доставки и радоваться новой покупке.
Оформление заказа в стандартном режиме выглядит следующим образом. Заполняете полностью форму по последовательным этапам: адрес, способ доставки, оплаты, данные о себе. Советуем в комментарии к заказу написать информацию, которая поможет курьеру вас найти. Нажмите кнопку «Оформить заказ».
Оплачивайте покупки удобным способом. В интернет-магазине доступно 3 варианта оплаты:
- Наличные при самовывозе или доставке курьером. Специалист свяжется с вами в день доставки, чтобы уточнить время и заранее подготовить сдачу с любой купюры. Вы подписываете товаросопроводительные документы, вносите денежные средства, получаете товар и чек.
- Безналичный расчет при самовывозе или оформлении в интернет-магазине: карты Visa и MasterCard. Чтобы оплатить покупку, система перенаправит вас на сервер системы ASSIST. Здесь нужно ввести номер карты, срок действия и имя держателя.
- Электронные системы при онлайн-заказе: PayPal, WebMoney и Яндекс.Деньги. Для совершения покупки система перенаправит вас на страницу платежного сервиса. Здесь необходимо заполнить форму по инструкции.
Экономьте время на получении заказа. В интернет-магазине доступно 4 варианта доставки:
- Курьерская доставка работает с 9.00 до 19.00. Когда товар поступит на склад, курьерская служба свяжется для уточнения деталей. Специалист предложит выбрать удобное время доставки и уточнит адрес. Осмотрите упаковку на целостность и соответствие указанной комплектации.
- Самовывоз из магазина. Список торговых точек для выбора появится в корзине. Когда заказ поступит на склад, вам придет уведомление. Для получения заказа обратитесь к сотруднику в кассовой зоне и назовите номер.
- Постамат. Когда заказ поступит на точку, на ваш телефон или e-mail придет уникальный код. Заказ нужно оплатить в терминале постамата. Срок хранения — 3 дня.
- Почтовая доставка через почту России. Когда заказ придет в отделение, на ваш адрес придет извещение о посылке. Перед оплатой вы можете оценить состояние коробки: вес, целостность. Вскрывать коробку самостоятельно вы можете только после оплаты заказа. Один заказ может содержать не больше 10 позиций и его стоимость не должна превышать 100 000 р.

































































































































