Если вы ищете стильное и функциональное решение для вашей ванной комнаты, обратите внимание на комплект подвесного унитаза Grohe Bauedge Bau Dream с инсталляцией Solido. Этот набор не только подчеркнет изысканность вашего интерьера, но и обеспечит высочайший уровень комфорта и практичности. Специальная самонесущая рама инсталляции предполагает простоту в установке и декоративное оформление поверхности, а возможность подключения воды с любой стороны — это ваш удобный выбор. Инновационная безободковая конструкция унитаза делает уход за ним легким, а высококачественные материалы гарантируют долгий срок службы.
Почему выбирают комплекты с унитазом Grohe Bauedge
- Конструкция безободкового унитаза повышает гигиеничность и облегчает очистку.
- Сиденье с механизмом микролифта плавно опускается, предотвращая резкие удары.
- Инсталляционная система Grohe Solido позволяет экономить воду благодаря двойному режиму слива.
- Шумоизоляция обеспечивает бесшумную работу всего комплекса.
- Установка, доступная с нескольких сторон, упрощает процесс монтажа.
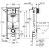
Краткая информация об изделии
- Безободковый белый подвесной унитаз Bauedge Bau Dream оснащён горизонтальным выпуском в стену.
- Фарфоровая конструкция предотвращает брызги благодаря форме воронки и устойчива к загрязнениям.
- Дюропластовая крышка-сиденье не желтеет, не царапается и выдерживает воздействие бытовой химии.
- Инсталляция Grohe Solido 38811KF0 устанавливается в капитальную стену и пол, имеет пневматическую кнопку для полного и частичного слива объемами 3 и 6 литров.
- Шумоизоляционная панель из пластика снижает уровень шума, диаметр слива составляет 9 см.
- Габариты панели: 42x0.2x42 см.
- Все компоненты комплекта произведены в Германии, группа унитаза — в России.
Что нужно знать перед покупкой
Перед покупкой убедитесь, что место установки позволит закрепить инсталляцию в капитальную стену и пол. Проверьте, что все водопроводные и канализационные точки подключаются должным образом. Благодаря опциям подключения сзади, слева и справа, инсталляция подойдет для большинства сантехнических проектов. Учтите, что данная система требует грамотной настройки пневмопанели для оптимальной работы кнопки слива. Такой комплекс позволит вам наслаждаться гигиеничностью и экономией воды, так как каждая деталь здесь продумана до мелочей.
Для покупки товара в нашем интернет-магазине выберите понравившийся товар и добавьте его в корзину. Далее перейдите в Корзину и нажмите на «Оформить заказ» или «Быстрый заказ».
Когда оформляете быстрый заказ, напишите ФИО, телефон и e-mail. Вам перезвонит менеджер и уточнит условия заказа. По результатам разговора вам придет подтверждение оформления товара на почту или через СМС. Теперь останется только ждать доставки и радоваться новой покупке.
Оформление заказа в стандартном режиме выглядит следующим образом. Заполняете полностью форму по последовательным этапам: адрес, способ доставки, оплаты, данные о себе. Советуем в комментарии к заказу написать информацию, которая поможет курьеру вас найти. Нажмите кнопку «Оформить заказ».
Оплачивайте покупки удобным способом. В интернет-магазине доступно 3 варианта оплаты:
- Наличные при самовывозе или доставке курьером. Специалист свяжется с вами в день доставки, чтобы уточнить время и заранее подготовить сдачу с любой купюры. Вы подписываете товаросопроводительные документы, вносите денежные средства, получаете товар и чек.
- Безналичный расчет при самовывозе или оформлении в интернет-магазине: карты Visa и MasterCard. Чтобы оплатить покупку, система перенаправит вас на сервер системы ASSIST. Здесь нужно ввести номер карты, срок действия и имя держателя.
- Электронные системы при онлайн-заказе: PayPal, WebMoney и Яндекс.Деньги. Для совершения покупки система перенаправит вас на страницу платежного сервиса. Здесь необходимо заполнить форму по инструкции.
Экономьте время на получении заказа. В интернет-магазине доступно 4 варианта доставки:
- Курьерская доставка работает с 9.00 до 19.00. Когда товар поступит на склад, курьерская служба свяжется для уточнения деталей. Специалист предложит выбрать удобное время доставки и уточнит адрес. Осмотрите упаковку на целостность и соответствие указанной комплектации.
- Самовывоз из магазина. Список торговых точек для выбора появится в корзине. Когда заказ поступит на склад, вам придет уведомление. Для получения заказа обратитесь к сотруднику в кассовой зоне и назовите номер.
- Постамат. Когда заказ поступит на точку, на ваш телефон или e-mail придет уникальный код. Заказ нужно оплатить в терминале постамата. Срок хранения — 3 дня.
- Почтовая доставка через почту России. Когда заказ придет в отделение, на ваш адрес придет извещение о посылке. Перед оплатой вы можете оценить состояние коробки: вес, целостность. Вскрывать коробку самостоятельно вы можете только после оплаты заказа. Один заказ может содержать не больше 10 позиций и его стоимость не должна превышать 100 000 р.

































































































































