Представляем вашему вниманию инновационный комплект от признанного лидера в мире сантехники — бренд Grohe. Этот комплексный набор из подвесного унитаза Bauedge Bau Stil Hurricane3 безободкового дизайна и системы инсталляции Grohe Solido 38811KF0 создан для тех, кто ценит качество, комфорт и эстетику. Инженеры Grohe продумали все до мельчайших деталей: от быстрого регулирования высоты до универсальности подключения воды. Этот продукт не просто упрощает монтаж, но и заботится о вашем благополучии и окружающей среде, экономя воду и обеспечивая бесшумную работу.
Почему выбирают комплект унитаза Grohe Solido?
- Выдерживает нагрузку до 400 кг, обеспечивая надежность в эксплуатации.
- Инновационная функция экономии воды с двойной системой смыва.
- Шумоизоляция, снижающая уровень шума до едва заметного шепота.
- Продуманные варианты подключения воды с трех сторон для большей гибкости установки.
- Быстрая и легкая установка благодаря универсальному набору компонентов.
Краткая информация об изделии
Подвесной унитаз Bauedge Bau Stil Hurricane3 отличается безободковым дизайном, что значительно облегчает уборку и повышает гигиеничность. Благодаря горизонтальному выпуску, фарфоровой конструкции и воронкообразной форме предотвращается образование брызг. Унитаз оснащен предусмотрительным микролифтом, благодаря которому крышка плавно опускается, а съемная крышка-сиденье из дюропласта устойчива к бытовой химии и сохраняет внешний вид на протяжении долгих лет. Предусмотренные возможности экономии воды делают этот выбор экологичным. Комплект уже включает сиденье, а монтаж ведется скрытым способом, что сохраняет минимализм интерьера. Страна-производитель — Россия, с 10-летней гарантией качества.
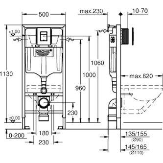
Система инсталляции Grohe Solido 38811KF0 монтируется на капитальную стену и пол, обеспечивая отличную устойчивость. Пневматическая кнопка смыва регулирует экономный слив объемом 3 или 6 литров и может быть установлена на любом удобном расстоянии. Несмотря на компактные размеры установки (глубина 23 см, высота 133 см), она отличается простотой в обслуживании, благодаря доступу через специальное окно панели.
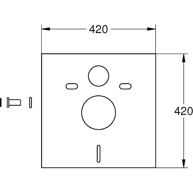
Шумоизоляционная панель выполнена из прочного пластика, производимого в Германии, с габаритами 42x0,2x42 см. Она гарантирует минимальный уровень шума, добавляя комфорт к вашему интерьеру.
Что нужно знать перед покупкой
Перед установкой убедитесь, что ваша стена и пол подходят для крепления инсталляции Grohe Solido, которая рассчитана на максимальную нагрузку до 400 кг. Обратите внимание на доступные моменты подключения воды — они возможны с трёх сторон, что позволяет гибко адаптироваться к вашим условиям. Также учитывайте межосевое расстояние шпилек (18/23 см) для монтажа. Срок эксплуатации будет надежно продлен, если следовать рекомендациям по установке и уходу, предоставленным производителем.
Для покупки товара в нашем интернет-магазине выберите понравившийся товар и добавьте его в корзину. Далее перейдите в Корзину и нажмите на «Оформить заказ» или «Быстрый заказ».
Когда оформляете быстрый заказ, напишите ФИО, телефон и e-mail. Вам перезвонит менеджер и уточнит условия заказа. По результатам разговора вам придет подтверждение оформления товара на почту или через СМС. Теперь останется только ждать доставки и радоваться новой покупке.
Оформление заказа в стандартном режиме выглядит следующим образом. Заполняете полностью форму по последовательным этапам: адрес, способ доставки, оплаты, данные о себе. Советуем в комментарии к заказу написать информацию, которая поможет курьеру вас найти. Нажмите кнопку «Оформить заказ».
Оплачивайте покупки удобным способом. В интернет-магазине доступно 3 варианта оплаты:
- Наличные при самовывозе или доставке курьером. Специалист свяжется с вами в день доставки, чтобы уточнить время и заранее подготовить сдачу с любой купюры. Вы подписываете товаросопроводительные документы, вносите денежные средства, получаете товар и чек.
- Безналичный расчет при самовывозе или оформлении в интернет-магазине: карты Visa и MasterCard. Чтобы оплатить покупку, система перенаправит вас на сервер системы ASSIST. Здесь нужно ввести номер карты, срок действия и имя держателя.
- Электронные системы при онлайн-заказе: PayPal, WebMoney и Яндекс.Деньги. Для совершения покупки система перенаправит вас на страницу платежного сервиса. Здесь необходимо заполнить форму по инструкции.
Экономьте время на получении заказа. В интернет-магазине доступно 4 варианта доставки:
- Курьерская доставка работает с 9.00 до 19.00. Когда товар поступит на склад, курьерская служба свяжется для уточнения деталей. Специалист предложит выбрать удобное время доставки и уточнит адрес. Осмотрите упаковку на целостность и соответствие указанной комплектации.
- Самовывоз из магазина. Список торговых точек для выбора появится в корзине. Когда заказ поступит на склад, вам придет уведомление. Для получения заказа обратитесь к сотруднику в кассовой зоне и назовите номер.
- Постамат. Когда заказ поступит на точку, на ваш телефон или e-mail придет уникальный код. Заказ нужно оплатить в терминале постамата. Срок хранения — 3 дня.
- Почтовая доставка через почту России. Когда заказ придет в отделение, на ваш адрес придет извещение о посылке. Перед оплатой вы можете оценить состояние коробки: вес, целостность. Вскрывать коробку самостоятельно вы можете только после оплаты заказа. Один заказ может содержать не больше 10 позиций и его стоимость не должна превышать 100 000 р.

































































































































