Комплект унитаза BelBagno Due — это идеальное решение для вашей ванной комнаты, сочетающее в себе современный стиль и функциональность. Подвесной унитаз из коллекции Due не только визуально разгружает пространство, но и облегчает процесс уборки благодаря безободковой конструкции. Система микролифта обеспечивает бесшумное и плавное опускание крышки, добавляя комфорта в каждодневное использование. Инсталляция с кнопкой смыва добавляет элегантности и участвует в экономии воды через опцию полного и частичного слива.
Почему выбирают Комплект унитаза BelBagno Due?
- Итальянское качество и стиль, воплощенные в каждом элементе.
- Безободковая конструкция для легкой уборки и улучшенной гигиены.
- Микролифт для тихого и безопасного опускания крышки.
- Экономный каскадный слив с опцией частичного и полного смыва.
- Компактные размеры для оптимального использования пространства.
Краткая информация об изделии
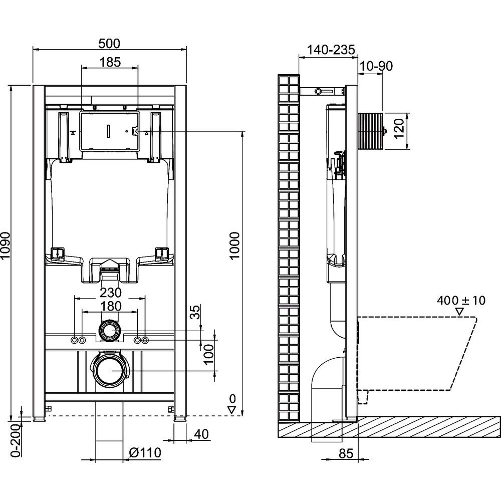
Подвесной унитаз BelBagno Due имеет фаянсовую чашу длиной 42 см и высотой 33.5 см, с горизонтальным выпуском в стену. Уникальная форма воронки предотвращает образование брызг, а каскадный слив эффективно очищает чашу мощным потоком воды. Унитаз оснащен съемным дюропластовым сиденьем с механизмом плавного опускания. Установка предполагает межосевое расстояние под крепежные шпильки 18/23 см. В комплекте с инсталляцией, которая поддерживает смывной бачок для верхнего подвода воды, и кнопкой хромированного смыва для унитаза, предлагается объем смыва: 3 и 6 / 3.5 и 4.5 литра. Гарантия на керамику — 25 лет, на инсталляцию — 10 лет, на кнопку смыва — 2 года, на сиденье — 1 год.
Что нужно знать перед покупкой
Перед установкой учитывайте, что конструкция предназначена для монтажа в стену, что требует профессионального подхода к инсталляции. Подвод воды осуществляется сверху бачка, поэтому важно обеспечить доступ к системе для возможного обслуживания. Комплектация товара позволяет полностью оборудовать санитарный узел, однако для корректной работы всей системы рекомендуется консультация со специалистами при установке. При выборе места установки учтите доступность для регулярного обслуживания и замены расходных материалов.
Для покупки товара в нашем интернет-магазине выберите понравившийся товар и добавьте его в корзину. Далее перейдите в Корзину и нажмите на «Оформить заказ» или «Быстрый заказ».
Когда оформляете быстрый заказ, напишите ФИО, телефон и e-mail. Вам перезвонит менеджер и уточнит условия заказа. По результатам разговора вам придет подтверждение оформления товара на почту или через СМС. Теперь останется только ждать доставки и радоваться новой покупке.
Оформление заказа в стандартном режиме выглядит следующим образом. Заполняете полностью форму по последовательным этапам: адрес, способ доставки, оплаты, данные о себе. Советуем в комментарии к заказу написать информацию, которая поможет курьеру вас найти. Нажмите кнопку «Оформить заказ».
Оплачивайте покупки удобным способом. В интернет-магазине доступно 3 варианта оплаты:
- Наличные при самовывозе или доставке курьером. Специалист свяжется с вами в день доставки, чтобы уточнить время и заранее подготовить сдачу с любой купюры. Вы подписываете товаросопроводительные документы, вносите денежные средства, получаете товар и чек.
- Безналичный расчет при самовывозе или оформлении в интернет-магазине: карты Visa и MasterCard. Чтобы оплатить покупку, система перенаправит вас на сервер системы ASSIST. Здесь нужно ввести номер карты, срок действия и имя держателя.
- Электронные системы при онлайн-заказе: PayPal, WebMoney и Яндекс.Деньги. Для совершения покупки система перенаправит вас на страницу платежного сервиса. Здесь необходимо заполнить форму по инструкции.
Экономьте время на получении заказа. В интернет-магазине доступно 4 варианта доставки:
- Курьерская доставка работает с 9.00 до 19.00. Когда товар поступит на склад, курьерская служба свяжется для уточнения деталей. Специалист предложит выбрать удобное время доставки и уточнит адрес. Осмотрите упаковку на целостность и соответствие указанной комплектации.
- Самовывоз из магазина. Список торговых точек для выбора появится в корзине. Когда заказ поступит на склад, вам придет уведомление. Для получения заказа обратитесь к сотруднику в кассовой зоне и назовите номер.
- Постамат. Когда заказ поступит на точку, на ваш телефон или e-mail придет уникальный код. Заказ нужно оплатить в терминале постамата. Срок хранения — 3 дня.
- Почтовая доставка через почту России. Когда заказ придет в отделение, на ваш адрес придет извещение о посылке. Перед оплатой вы можете оценить состояние коробки: вес, целостность. Вскрывать коробку самостоятельно вы можете только после оплаты заказа. Один заказ может содержать не больше 10 позиций и его стоимость не должна превышать 100 000 р.

































































































































