Комплект унитаза подвесного BelBagno Due BB3103CHR/SC предоставляет вам передовые решения для современного санузла. Этот комплект включает в себя инновационную безободковую конструкцию, которая не только облегчает уборку, но и значительно улучшает гигиену. Инсталляция BB002-80 снабжена элегантной кнопкой BB018-GV-BIANCO, которая позволяет контролировать необходимый объем слива. Кроме того, механизм микролифта обеспечивает плавное и бесшумное закрытие крышки, увеличивая комфорт использования. С этим комплектом ваш санузел обретет стильное и функциональное решение, соответствующее самым высоким стандартам качества и эстетики.
Почему выбирают Комплект унитаз подвесной BelBagno Due?
- Инновационная безободковая конструкция для лучшей гигиены.
 - Двойной режим слива для экономии воды.
 - Механизм микролифта для комфортного использования.
 - Итальянское качество и дизайн.
 
Краткая информация об изделии
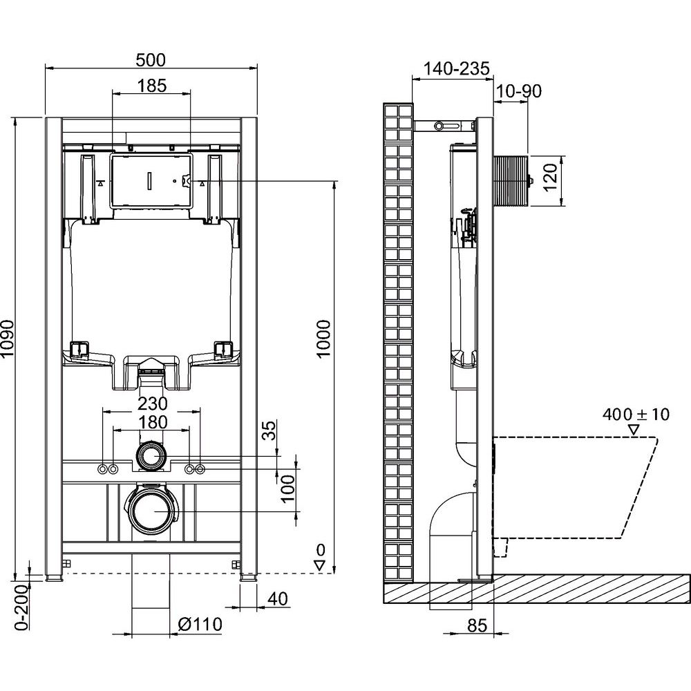
- Комплект поставляется с инсталляцией BB002-80 и кнопкой BB018-GV-BIANCO.
 - Унитаз подвесной из фаянса, форма воронки предотвращает образование брызг.
 - Каскадный слив очищает чашу мощным потоком, длина чаши составляет 42 см.
 - Высота чаши — 36.3 см, межосевое расстояние под крепежные шпильки — 18 / 23 см.
 - Объем смыва составляет 3 и 6, либо 3.5 и 4.5 литра для экономии воды.
 - Подвод воды осуществляется сверху бачка, сиденье из дюропласта.
 - Гарантия на керамику — 25 лет, инсталляцию — 10 лет, кнопку смыва — 2 года, сиденье — 1 год.
 - Производство: Италия.
 
Что нужно знать перед покупкой
Перед установкой необходимо убедиться в возможности подвода воды сверху бачка. Обратите внимание, что для монтажа унитаза требуется прочное крепление к стене и проверка всех соединений для предотвращения протечек. Также рекомендуем производить чистку и уход за устройством с использованием специальных средств, чтобы увеличить срок службы покрытия и сохранить его внешний вид. В комплект входит все необходимое для установки, включая сиденье и крепежные элементы.
Для покупки товара в нашем интернет-магазине выберите понравившийся товар и добавьте его в корзину. Далее перейдите в Корзину и нажмите на «Оформить заказ» или «Быстрый заказ».
Когда оформляете быстрый заказ, напишите ФИО, телефон и e-mail. Вам перезвонит менеджер и уточнит условия заказа. По результатам разговора вам придет подтверждение оформления товара на почту или через СМС. Теперь останется только ждать доставки и радоваться новой покупке.
Оформление заказа в стандартном режиме выглядит следующим образом. Заполняете полностью форму по последовательным этапам: адрес, способ доставки, оплаты, данные о себе. Советуем в комментарии к заказу написать информацию, которая поможет курьеру вас найти. Нажмите кнопку «Оформить заказ».
Оплачивайте покупки удобным способом. В интернет-магазине доступно 3 варианта оплаты:
- Наличные при самовывозе или доставке курьером. Специалист свяжется с вами в день доставки, чтобы уточнить время и заранее подготовить сдачу с любой купюры. Вы подписываете товаросопроводительные документы, вносите денежные средства, получаете товар и чек.
 - Безналичный расчет при самовывозе или оформлении в интернет-магазине: карты Visa и MasterCard. Чтобы оплатить покупку, система перенаправит вас на сервер системы ASSIST. Здесь нужно ввести номер карты, срок действия и имя держателя.
 - Электронные системы при онлайн-заказе: PayPal, WebMoney и Яндекс.Деньги. Для совершения покупки система перенаправит вас на страницу платежного сервиса. Здесь необходимо заполнить форму по инструкции.
 
Экономьте время на получении заказа. В интернет-магазине доступно 4 варианта доставки:
- Курьерская доставка работает с 9.00 до 19.00. Когда товар поступит на склад, курьерская служба свяжется для уточнения деталей. Специалист предложит выбрать удобное время доставки и уточнит адрес. Осмотрите упаковку на целостность и соответствие указанной комплектации.
 - Самовывоз из магазина. Список торговых точек для выбора появится в корзине. Когда заказ поступит на склад, вам придет уведомление. Для получения заказа обратитесь к сотруднику в кассовой зоне и назовите номер.
 - Постамат. Когда заказ поступит на точку, на ваш телефон или e-mail придет уникальный код. Заказ нужно оплатить в терминале постамата. Срок хранения — 3 дня.
 - Почтовая доставка через почту России. Когда заказ придет в отделение, на ваш адрес придет извещение о посылке. Перед оплатой вы можете оценить состояние коробки: вес, целостность. Вскрывать коробку самостоятельно вы можете только после оплаты заказа. Один заказ может содержать не больше 10 позиций и его стоимость не должна превышать 100 000 р.
 

































































































































                                                                    
                                                                    
                                                                    
                                                                    
                                                                    
                                                                    
                                                                    
                                                                    
                                                                    
                        
                        
                        
                        
                        
                        
                        
                        
                        