Ищете идеальное решение для вашей ванной комнаты? Откройте для себя комплект унитаз подвесной BelBagno Loto BB070CHR/SC с системой инсталляции EWRIKA ProLT 0026-2020 и кнопкой смыва EWRIKA 0051 в хромированном исполнении. Этот комплект сочетает в себе стильный итальянский дизайн и передовые технологии, обеспечивая максимальный комфорт и долговечность.
Почему выбирают комплекты с унитазом BelBagno?
- Безободковая конструкция для легкой уборки и повышенной гигиеничности.
- Легкий и бесшумный смыв с двумя режимами экономичного слива.
- Высококачественные материалы: фаянс, дюропласт и хромированный пластик.
- Простая установка и долговечные компоненты.
Краткая информация об изделии
Безободковый подвесной унитаз BelBagno Loto BB070CHR/SC предлагает конструкцию с горизонтальным выпуском в стену и механизм плавного опускания крышки, что делает его чрезвычайно удобным в использовании. Уникальная форма воронки предотвращает образование брызг, а крышка-сиденье из дюропласта не только не желтеет и не царапается, но и устойчива к бытовой химии. Длительная гарантия на керамику — 25 лет, а на сиденье — 1 год, подтверждает надежность этого решения, произведенного в Италии.
Инсталляция EWRIKA ProLT 0026-2020 обеспечивает надежное крепление к капитальной стене и полу. Объем бачка 3 и 6 литров позволяет экономить воду с помощью двух кнопок слива. Особый механизм и шумоизоляция гарантируют тихую работу устройства, выдерживающего нагрузку до 400 кг. Турецкое качество подтверждается 5-летней гарантией.
Кнопка смыва EWRIKA 0051, хромированная, проста в монтаже, бесшумна в работе и рассчитана на 100 000 нажатий. Ее прочность и стойкость к царапинам и ударам обеспечивают долговечность использования. Гарантия на кнопки составляет 2 года.
Что нужно знать перед покупкой
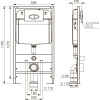
Перед установкой убедитесь, что место крепления соответствует требованиям монтажа инсталляции: капитальная стена и пол, монтажная глубина 10 см, высота 107 см, межосевое расстояние 18/23 см. Подходящий подвод воды сверху обеспечит надежную работу системы. Комплект поставляется в собранном виде, облегчая установку и экономя ваше время. Не забудьте, что для сохранения гарантии необходима правильная установка всех элементов комплекта.
Для покупки товара в нашем интернет-магазине выберите понравившийся товар и добавьте его в корзину. Далее перейдите в Корзину и нажмите на «Оформить заказ» или «Быстрый заказ».
Когда оформляете быстрый заказ, напишите ФИО, телефон и e-mail. Вам перезвонит менеджер и уточнит условия заказа. По результатам разговора вам придет подтверждение оформления товара на почту или через СМС. Теперь останется только ждать доставки и радоваться новой покупке.
Оформление заказа в стандартном режиме выглядит следующим образом. Заполняете полностью форму по последовательным этапам: адрес, способ доставки, оплаты, данные о себе. Советуем в комментарии к заказу написать информацию, которая поможет курьеру вас найти. Нажмите кнопку «Оформить заказ».
Оплачивайте покупки удобным способом. В интернет-магазине доступно 3 варианта оплаты:
- Наличные при самовывозе или доставке курьером. Специалист свяжется с вами в день доставки, чтобы уточнить время и заранее подготовить сдачу с любой купюры. Вы подписываете товаросопроводительные документы, вносите денежные средства, получаете товар и чек.
- Безналичный расчет при самовывозе или оформлении в интернет-магазине: карты Visa и MasterCard. Чтобы оплатить покупку, система перенаправит вас на сервер системы ASSIST. Здесь нужно ввести номер карты, срок действия и имя держателя.
- Электронные системы при онлайн-заказе: PayPal, WebMoney и Яндекс.Деньги. Для совершения покупки система перенаправит вас на страницу платежного сервиса. Здесь необходимо заполнить форму по инструкции.
Экономьте время на получении заказа. В интернет-магазине доступно 4 варианта доставки:
- Курьерская доставка работает с 9.00 до 19.00. Когда товар поступит на склад, курьерская служба свяжется для уточнения деталей. Специалист предложит выбрать удобное время доставки и уточнит адрес. Осмотрите упаковку на целостность и соответствие указанной комплектации.
- Самовывоз из магазина. Список торговых точек для выбора появится в корзине. Когда заказ поступит на склад, вам придет уведомление. Для получения заказа обратитесь к сотруднику в кассовой зоне и назовите номер.
- Постамат. Когда заказ поступит на точку, на ваш телефон или e-mail придет уникальный код. Заказ нужно оплатить в терминале постамата. Срок хранения — 3 дня.
- Почтовая доставка через почту России. Когда заказ придет в отделение, на ваш адрес придет извещение о посылке. Перед оплатой вы можете оценить состояние коробки: вес, целостность. Вскрывать коробку самостоятельно вы можете только после оплаты заказа. Один заказ может содержать не больше 10 позиций и его стоимость не должна превышать 100 000 р.

































































































































