Ищете идеальное решение для вашей ванной комнаты? Представляем комплект подвесного унитаза BelBagno Tre, который не только впечатляет своей функциональностью, но и стильным итальянским дизайном. Безободковая конструкция и каскадный слив обеспечивают высокие стандарты гигиены и удобства, а система экономного слива с двумя кнопками позволяет эффективно использовать воду. Плавное опускание крышки и тщательно подобранные материалы делают этот комплект идеальным выбором для современных домов.
Почему выбирают инсталляции и комплекты с унитазом BelBagno Tre
- Итальянское качество и современный дизайн.
- Гигиеничность благодаря безободковой конструкции.
- Экономия воды с системой двойного смыва.
- Плавное и бесшумное опускание крышки.
- Длительный срок службы гарантирован производителем.
Краткая информация об изделии
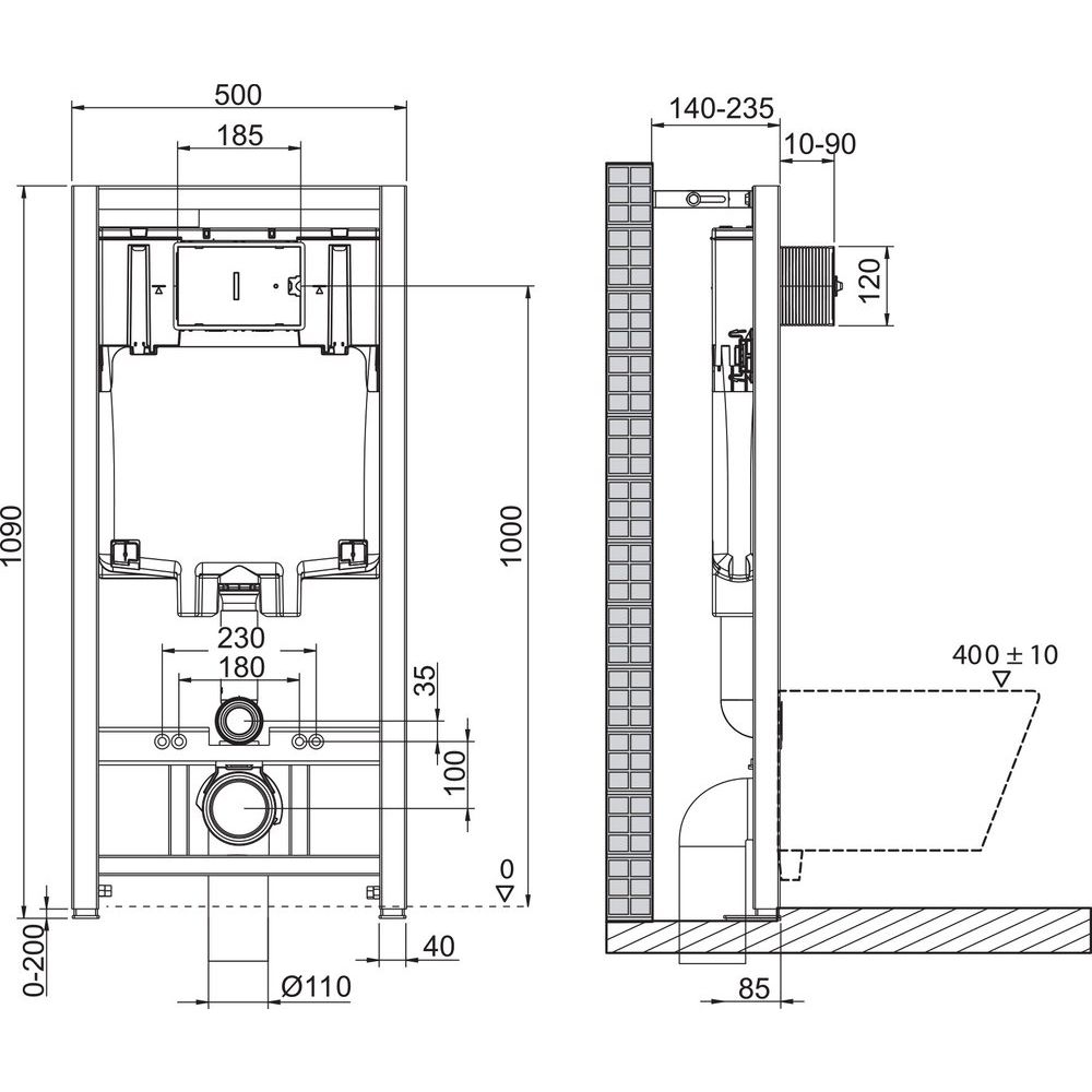
Унитаз подвесной имеет горизонтальный выпуск в стену и изготовлен из качественного фаянса. Специальная форма воронки предотвращает образование брызг, а каскадный слив гарантирует безупречную чистоту после каждой эксплуатации. Инсталляция оснащена верхним подводом воды и удобной кнопкой смыва BB014-SR-BIANCO на выбор: полный на 6 и 3 литра или частичный на 4,5 и 3,5 литра. Размеры чаши составляют 43 см в длину и 35 см в высоту, с межосевым расстоянием для крепежных шпилек 18 и 23 см. Такой комплект гарантирует надежность и долговечность, подтвержденную гарантией: 25 лет на керамику, 10 лет на инсталляцию, 2 года на кнопку смыва и 1 год на сиденье из дюропласта.
Что нужно знать перед покупкой
Перед установкой убедитесь в правильности выбора межосевого расстояния для крепежных шпилек. Подвод воды осуществляется сверху бачка, что важно учесть при подключении. За счет эргономичной крышки-сиденья, которую легко снять, уход за изделием не доставит хлопот. Все компоненты комплекта произведены в Италии, что служит дополнительной гарантией надежности и высокого качества.
Для покупки товара в нашем интернет-магазине выберите понравившийся товар и добавьте его в корзину. Далее перейдите в Корзину и нажмите на «Оформить заказ» или «Быстрый заказ».
Когда оформляете быстрый заказ, напишите ФИО, телефон и e-mail. Вам перезвонит менеджер и уточнит условия заказа. По результатам разговора вам придет подтверждение оформления товара на почту или через СМС. Теперь останется только ждать доставки и радоваться новой покупке.
Оформление заказа в стандартном режиме выглядит следующим образом. Заполняете полностью форму по последовательным этапам: адрес, способ доставки, оплаты, данные о себе. Советуем в комментарии к заказу написать информацию, которая поможет курьеру вас найти. Нажмите кнопку «Оформить заказ».
Оплачивайте покупки удобным способом. В интернет-магазине доступно 3 варианта оплаты:
- Наличные при самовывозе или доставке курьером. Специалист свяжется с вами в день доставки, чтобы уточнить время и заранее подготовить сдачу с любой купюры. Вы подписываете товаросопроводительные документы, вносите денежные средства, получаете товар и чек.
- Безналичный расчет при самовывозе или оформлении в интернет-магазине: карты Visa и MasterCard. Чтобы оплатить покупку, система перенаправит вас на сервер системы ASSIST. Здесь нужно ввести номер карты, срок действия и имя держателя.
- Электронные системы при онлайн-заказе: PayPal, WebMoney и Яндекс.Деньги. Для совершения покупки система перенаправит вас на страницу платежного сервиса. Здесь необходимо заполнить форму по инструкции.
Экономьте время на получении заказа. В интернет-магазине доступно 4 варианта доставки:
- Курьерская доставка работает с 9.00 до 19.00. Когда товар поступит на склад, курьерская служба свяжется для уточнения деталей. Специалист предложит выбрать удобное время доставки и уточнит адрес. Осмотрите упаковку на целостность и соответствие указанной комплектации.
- Самовывоз из магазина. Список торговых точек для выбора появится в корзине. Когда заказ поступит на склад, вам придет уведомление. Для получения заказа обратитесь к сотруднику в кассовой зоне и назовите номер.
- Постамат. Когда заказ поступит на точку, на ваш телефон или e-mail придет уникальный код. Заказ нужно оплатить в терминале постамата. Срок хранения — 3 дня.
- Почтовая доставка через почту России. Когда заказ придет в отделение, на ваш адрес придет извещение о посылке. Перед оплатой вы можете оценить состояние коробки: вес, целостность. Вскрывать коробку самостоятельно вы можете только после оплаты заказа. Один заказ может содержать не больше 10 позиций и его стоимость не должна превышать 100 000 р.

































































































































