Представляем вашему вниманию комплект унитаз подвесной BelBagno Tre и инсталляцию TECE Base 9400413 4 в 1 с кнопкой смыва — идеальное сочетание современного дизайна, функциональности и надежности. Это решение от признанных брендов TECE и BelBagno гарантирует комфортное использование и экономию воды, благодаря инновационным технологиям и продуманной конструкции. Украсьте вашу ванную комнату элегантностью итальянского стиля и немецкой инженерии.
Почему выбирают инсталляции TECE Base и унитазы BelBagno Tre
- Система инсталляции с уникальным механизмом установки позволяет монтировать конструкцию даже в одиночку, благодаря ножному тормозу.
- Два варианта подключения воды увеличивают гибкость монтажа.
- Ударопрочный материал бачка обеспечивает долговечность и надежность.
- Безободковая конструкция унитаза BelBagno Tre облегчает уход и повышает гигиену.
- Механизм плавного опускания крышки добавляет комфорта и предотвращает внезапные удары.
Краткая информация об изделии
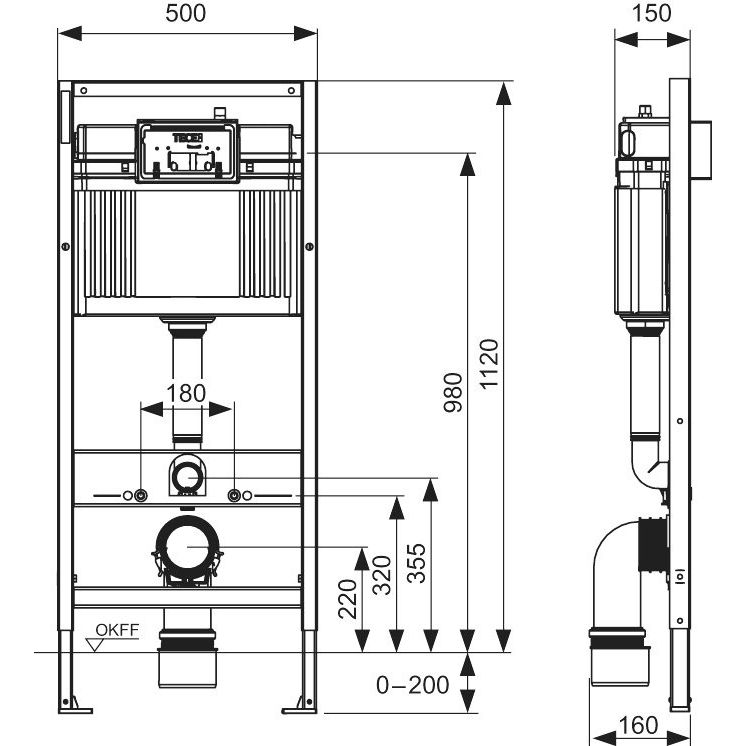
Инсталляция TECE Base крепится к капитальной стене, предоставляя механическую кнопку смыва с экономичным двойным режимом — для полного и частичного слива объемом 3, 4.5, 6, 7.5 и 9 литров. Монтажная глубина составляет 16 см, тогда как высота — 112 см, что позволяет удобно адаптировать его под различные условия. Межосевое расстояние под крепеж шпильки равно 18 см.
Унитаз BelBagno Tre оснащен горизонтальным выпуском в стену и фаянсовой чашей с формой воронки, предотвращающей образование брызг. Крышка из дюропласта не желтеет и устойчива к бытовой химии, а система быстрого снятия обеспечивает легкую чистку. Гарантия на керамику — 25 лет, что подтверждает высокое качество и надежность.
Что нужно знать перед покупкой
Обращаем ваше внимание, что для реализации функции отвода воздуха в вентканал инсталляции необходимо дополнительно приобрести впускной патрубок. Также, для автодезодорирования необходима крышка с контейнером для гигиенических таблеток TECEprofil.
Выбирая данный комплект, вы создаете основу для удобного и гигиеничного санузла, обладая уверенность в том, что сделали выбор в пользу проверенного качества и функциональности.
Для покупки товара в нашем интернет-магазине выберите понравившийся товар и добавьте его в корзину. Далее перейдите в Корзину и нажмите на «Оформить заказ» или «Быстрый заказ».
Когда оформляете быстрый заказ, напишите ФИО, телефон и e-mail. Вам перезвонит менеджер и уточнит условия заказа. По результатам разговора вам придет подтверждение оформления товара на почту или через СМС. Теперь останется только ждать доставки и радоваться новой покупке.
Оформление заказа в стандартном режиме выглядит следующим образом. Заполняете полностью форму по последовательным этапам: адрес, способ доставки, оплаты, данные о себе. Советуем в комментарии к заказу написать информацию, которая поможет курьеру вас найти. Нажмите кнопку «Оформить заказ».
Оплачивайте покупки удобным способом. В интернет-магазине доступно 3 варианта оплаты:
- Наличные при самовывозе или доставке курьером. Специалист свяжется с вами в день доставки, чтобы уточнить время и заранее подготовить сдачу с любой купюры. Вы подписываете товаросопроводительные документы, вносите денежные средства, получаете товар и чек.
- Безналичный расчет при самовывозе или оформлении в интернет-магазине: карты Visa и MasterCard. Чтобы оплатить покупку, система перенаправит вас на сервер системы ASSIST. Здесь нужно ввести номер карты, срок действия и имя держателя.
- Электронные системы при онлайн-заказе: PayPal, WebMoney и Яндекс.Деньги. Для совершения покупки система перенаправит вас на страницу платежного сервиса. Здесь необходимо заполнить форму по инструкции.
Экономьте время на получении заказа. В интернет-магазине доступно 4 варианта доставки:
- Курьерская доставка работает с 9.00 до 19.00. Когда товар поступит на склад, курьерская служба свяжется для уточнения деталей. Специалист предложит выбрать удобное время доставки и уточнит адрес. Осмотрите упаковку на целостность и соответствие указанной комплектации.
- Самовывоз из магазина. Список торговых точек для выбора появится в корзине. Когда заказ поступит на склад, вам придет уведомление. Для получения заказа обратитесь к сотруднику в кассовой зоне и назовите номер.
- Постамат. Когда заказ поступит на точку, на ваш телефон или e-mail придет уникальный код. Заказ нужно оплатить в терминале постамата. Срок хранения — 3 дня.
- Почтовая доставка через почту России. Когда заказ придет в отделение, на ваш адрес придет извещение о посылке. Перед оплатой вы можете оценить состояние коробки: вес, целостность. Вскрывать коробку самостоятельно вы можете только после оплаты заказа. Один заказ может содержать не больше 10 позиций и его стоимость не должна превышать 100 000 р.

































































































































