Почему выбирают комплекты от Grohe и Bien Ion?
- Безободковый дизайн и функция биде для гигиеничности и удобства.- Универсальность инсталляции с возможностью подключения к другим элементам.
- Встроенная шумоизоляция уменьшает шум до уровня шепота.
- Экономия воды благодаря двойной системе смыва.
Краткая информация об изделии
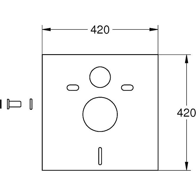
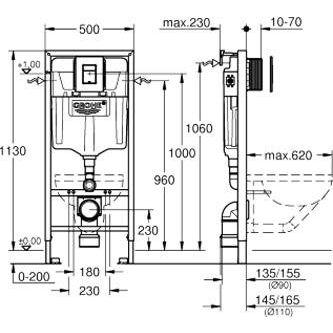
Унитаз от Bien Ion оснащен горизонтальным выпуском и конструкцией, облегчающей уборку за счет отсутствия ободка, что повышает уровень гигиеничности. Предусмотрено плавное опускание крышки и легкосъемное сиденье для облегчения ухода. Фарфор и дюропласт обеспечивают долговечность и устойчивость к повреждениям. Унитаз также включает сифон для предотвращения разбрызгивания и покрытие, препятствующее загрязнению. Инсталляция Grohe Solido 38811KF0 предназначена для крепления в капитальную стену с возможностью управления через кнопку смыва, регулирующую объем выпуска воды. Подвод воды возможен с трех сторон, а система пневматического управления обеспечивает бесшумность.Что нужно знать перед покупкой
Обратите внимание, что процесс установки требует крепления инсталляции к капитальной стене, что обеспечивает надежность конструкции. Пневматическая кнопка смыва легко настраивается на нужное расстояние, что подходит для любого дизайна ванной комнаты. Рекомендуется установить унитаз на удобной для всех пользователей высоте. Шумоизоляционная панель обеспечивает не только снижение шума, но и способствует уменьшению вибрации для сохранения долговечности комплектующих. Обязательно соблюдайте инструкции по установке для достижения наилучших результатов и надежности.Для покупки товара в нашем интернет-магазине выберите понравившийся товар и добавьте его в корзину. Далее перейдите в Корзину и нажмите на «Оформить заказ» или «Быстрый заказ».
Когда оформляете быстрый заказ, напишите ФИО, телефон и e-mail. Вам перезвонит менеджер и уточнит условия заказа. По результатам разговора вам придет подтверждение оформления товара на почту или через СМС. Теперь останется только ждать доставки и радоваться новой покупке.
Оформление заказа в стандартном режиме выглядит следующим образом. Заполняете полностью форму по последовательным этапам: адрес, способ доставки, оплаты, данные о себе. Советуем в комментарии к заказу написать информацию, которая поможет курьеру вас найти. Нажмите кнопку «Оформить заказ».
Оплачивайте покупки удобным способом. В интернет-магазине доступно 3 варианта оплаты:
- Наличные при самовывозе или доставке курьером. Специалист свяжется с вами в день доставки, чтобы уточнить время и заранее подготовить сдачу с любой купюры. Вы подписываете товаросопроводительные документы, вносите денежные средства, получаете товар и чек.
- Безналичный расчет при самовывозе или оформлении в интернет-магазине: карты Visa и MasterCard. Чтобы оплатить покупку, система перенаправит вас на сервер системы ASSIST. Здесь нужно ввести номер карты, срок действия и имя держателя.
- Электронные системы при онлайн-заказе: PayPal, WebMoney и Яндекс.Деньги. Для совершения покупки система перенаправит вас на страницу платежного сервиса. Здесь необходимо заполнить форму по инструкции.
Экономьте время на получении заказа. В интернет-магазине доступно 4 варианта доставки:
- Курьерская доставка работает с 9.00 до 19.00. Когда товар поступит на склад, курьерская служба свяжется для уточнения деталей. Специалист предложит выбрать удобное время доставки и уточнит адрес. Осмотрите упаковку на целостность и соответствие указанной комплектации.
- Самовывоз из магазина. Список торговых точек для выбора появится в корзине. Когда заказ поступит на склад, вам придет уведомление. Для получения заказа обратитесь к сотруднику в кассовой зоне и назовите номер.
- Постамат. Когда заказ поступит на точку, на ваш телефон или e-mail придет уникальный код. Заказ нужно оплатить в терминале постамата. Срок хранения — 3 дня.
- Почтовая доставка через почту России. Когда заказ придет в отделение, на ваш адрес придет извещение о посылке. Перед оплатой вы можете оценить состояние коробки: вес, целостность. Вскрывать коробку самостоятельно вы можете только после оплаты заказа. Один заказ может содержать не больше 10 позиций и его стоимость не должна превышать 100 000 р.

































































































































