Комплект унитаза подвесного BOCCHI Venezia — это уникальное сочетание высокого качества, эстетичного дизайна и инновационных технологий. Включив в себя всё необходимое для установки, данный комплект станет идеальным решением для создания стильного и функционального пространства в вашей ванной комнате. В него входит сама чаша унитаза, крышка-сиденье с микролифтом, система инсталляции Grohe с шумоизоляцией, гарантируя долговечность и комфорт в эксплуатации.
Почему выбирают инсталляции и комплекты с унитазом BOCCHI Venezia
- Высокое качество и долговечность материалов, произведенных в Италии и Германии.
- Система экономичного смыва с двойной кнопкой существенно снижает расход воды.
- Эффективная шумоизоляция минимизирует посторонние звуки.
- Инновационная безободковая конструкция облегчает уход за чашей унитаза.
- Универсальный монтажный набор обеспечивает лёгкую установку и подвод воды с трёх сторон.
Краткая информация об изделии
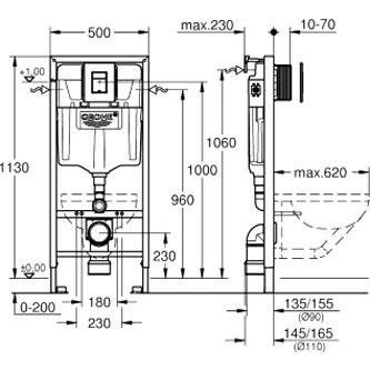
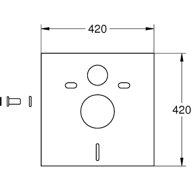
Чаша унитаза подвесного BOCCHI Venezia оснащена горизонтальным выпуском в стену и каскадным сливом, что обеспечивает надёжную и экономичную работу. Фарфор с защитным покрытием предотвращает появление загрязнений и сохраняет безупречный внешний вид на протяжении многих лет. Межосевое расстояние под крепёжные шпильки составляет 18 см, что соответствует европейским стандартам. Крышка-сиденье из дюропласта не царапается и не боится бытовой химии, оснащена удобным микролифтом. Система инсталляции Grohe Solido поддерживает установки до 400 кг, монтаж возможен как в стену, так и в пол. Экономный слив с объёмом бачка на 3 и 6 литров, удобное пневматическое управление с бесшумной работой.
Что нужно знать перед покупкой
Перед установкой убедитесь, что стена, в которой будет крепиться система инсталляции, обладает достаточной прочностью. Инсталляция Grohe Solido предполагает пневматическую кнопку на расстоянии, что обеспечивает удобство в использовании. Для предотвращения протечек и снижения уровня шума комплект оснащён шумоизоляционной панелью. Производители предоставляют 10-летнюю гарантию на фарфоровую чашу, 2 года на крышку-сиденье и 1 год на систему инсталляции. Такой комплект станет отличным решением как для дома, так и для коммерческой недвижимости.
Для покупки товара в нашем интернет-магазине выберите понравившийся товар и добавьте его в корзину. Далее перейдите в Корзину и нажмите на «Оформить заказ» или «Быстрый заказ».
Когда оформляете быстрый заказ, напишите ФИО, телефон и e-mail. Вам перезвонит менеджер и уточнит условия заказа. По результатам разговора вам придет подтверждение оформления товара на почту или через СМС. Теперь останется только ждать доставки и радоваться новой покупке.
Оформление заказа в стандартном режиме выглядит следующим образом. Заполняете полностью форму по последовательным этапам: адрес, способ доставки, оплаты, данные о себе. Советуем в комментарии к заказу написать информацию, которая поможет курьеру вас найти. Нажмите кнопку «Оформить заказ».
Оплачивайте покупки удобным способом. В интернет-магазине доступно 3 варианта оплаты:
- Наличные при самовывозе или доставке курьером. Специалист свяжется с вами в день доставки, чтобы уточнить время и заранее подготовить сдачу с любой купюры. Вы подписываете товаросопроводительные документы, вносите денежные средства, получаете товар и чек.
- Безналичный расчет при самовывозе или оформлении в интернет-магазине: карты Visa и MasterCard. Чтобы оплатить покупку, система перенаправит вас на сервер системы ASSIST. Здесь нужно ввести номер карты, срок действия и имя держателя.
- Электронные системы при онлайн-заказе: PayPal, WebMoney и Яндекс.Деньги. Для совершения покупки система перенаправит вас на страницу платежного сервиса. Здесь необходимо заполнить форму по инструкции.
Экономьте время на получении заказа. В интернет-магазине доступно 4 варианта доставки:
- Курьерская доставка работает с 9.00 до 19.00. Когда товар поступит на склад, курьерская служба свяжется для уточнения деталей. Специалист предложит выбрать удобное время доставки и уточнит адрес. Осмотрите упаковку на целостность и соответствие указанной комплектации.
- Самовывоз из магазина. Список торговых точек для выбора появится в корзине. Когда заказ поступит на склад, вам придет уведомление. Для получения заказа обратитесь к сотруднику в кассовой зоне и назовите номер.
- Постамат. Когда заказ поступит на точку, на ваш телефон или e-mail придет уникальный код. Заказ нужно оплатить в терминале постамата. Срок хранения — 3 дня.
- Почтовая доставка через почту России. Когда заказ придет в отделение, на ваш адрес придет извещение о посылке. Перед оплатой вы можете оценить состояние коробки: вес, целостность. Вскрывать коробку самостоятельно вы можете только после оплаты заказа. Один заказ может содержать не больше 10 позиций и его стоимость не должна превышать 100 000 р.

































































































































