Откройте для себя безупречное сочетание практичности и стиля с комплектом подвесного унитаза BOND Cube F04-108 от Grohe. Этот современный безободковый унитаз выполнен в элегантном черном цвете и оборудован механизмом микролифта для плавного опускания крышки, обеспечивая максимальный комфорт. К комплекту прилагается изысканная шумоизоляция Grohe и надежная система инсталляции Solido 38811KFO с инновационной пневматической кнопкой смыва — все, что нужно для создания идеальной ванной комнаты.
Почему выбирают комплект унитаз подвесной BOND Cube F04-108 от Grohe
- Стильный дизайн и цветовое решение идеально впишутся в современный интерьер.
- Современная конструкция без ободка делает процесс уборки проще и гигиеничнее.
- Механизм микролифта предотвращает резкое падение крышки и повышает комфорт использования.
- Комбинация с системой инсталляции Grohe Solido обеспечивает экономию воды и шумопоглощение.
Краткая информация об изделии
- Унитаз подвесной BOND Cube F04-108: Безободковая конструкция улучшает гигиену и упрощает уборку. Выпуск направлен горизонтально в стену. Фарфоровое исполнение добавляет долговечности, а крышка из дюропласта устойчива к бытовой химии.
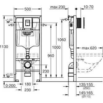
- Инсталляция Grohe Solido 38811KFO: Легко крепится как к стене, так и к полу, пневматическая кнопка позволяет управлять смывом с любой дальности. Экономная система слива предлагает два режима — полный и частичный (3 и 6 л).
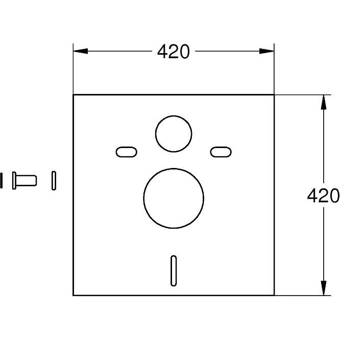
- Шумоизоляция Grohe: Пластиковая панель немецкого производства обеспечивает надежное снижение шума.
Что нужно знать перед покупкой
Перед установкой важно убедиться в прочности стены: система инсталляции крепится на капитальную конструкцию и выдерживает нагрузку до 400 кг. Несмотря на легкость установки, возможны различные варианты подключения подачи воды — сбоку или позади, что делает комплект универсальным для любых условий. Также учтите, что обслуживание механизмов инсталляции возможно без демонтажа, обеспечивая простоту и удобство использования. Наслаждайтесь тишиной благодаря инновационной шумоизоляции, которая снижает уровень шума до минимума. Комплект с гарантией 25 лет на фарфоровое исполнение унитаза и год на инсталляцию от производителя. Позвольте вашей ванной комнате быть комфортной и стильной с Grohe.
Для покупки товара в нашем интернет-магазине выберите понравившийся товар и добавьте его в корзину. Далее перейдите в Корзину и нажмите на «Оформить заказ» или «Быстрый заказ».
Когда оформляете быстрый заказ, напишите ФИО, телефон и e-mail. Вам перезвонит менеджер и уточнит условия заказа. По результатам разговора вам придет подтверждение оформления товара на почту или через СМС. Теперь останется только ждать доставки и радоваться новой покупке.
Оформление заказа в стандартном режиме выглядит следующим образом. Заполняете полностью форму по последовательным этапам: адрес, способ доставки, оплаты, данные о себе. Советуем в комментарии к заказу написать информацию, которая поможет курьеру вас найти. Нажмите кнопку «Оформить заказ».
Оплачивайте покупки удобным способом. В интернет-магазине доступно 3 варианта оплаты:
- Наличные при самовывозе или доставке курьером. Специалист свяжется с вами в день доставки, чтобы уточнить время и заранее подготовить сдачу с любой купюры. Вы подписываете товаросопроводительные документы, вносите денежные средства, получаете товар и чек.
- Безналичный расчет при самовывозе или оформлении в интернет-магазине: карты Visa и MasterCard. Чтобы оплатить покупку, система перенаправит вас на сервер системы ASSIST. Здесь нужно ввести номер карты, срок действия и имя держателя.
- Электронные системы при онлайн-заказе: PayPal, WebMoney и Яндекс.Деньги. Для совершения покупки система перенаправит вас на страницу платежного сервиса. Здесь необходимо заполнить форму по инструкции.
Экономьте время на получении заказа. В интернет-магазине доступно 4 варианта доставки:
- Курьерская доставка работает с 9.00 до 19.00. Когда товар поступит на склад, курьерская служба свяжется для уточнения деталей. Специалист предложит выбрать удобное время доставки и уточнит адрес. Осмотрите упаковку на целостность и соответствие указанной комплектации.
- Самовывоз из магазина. Список торговых точек для выбора появится в корзине. Когда заказ поступит на склад, вам придет уведомление. Для получения заказа обратитесь к сотруднику в кассовой зоне и назовите номер.
- Постамат. Когда заказ поступит на точку, на ваш телефон или e-mail придет уникальный код. Заказ нужно оплатить в терминале постамата. Срок хранения — 3 дня.
- Почтовая доставка через почту России. Когда заказ придет в отделение, на ваш адрес придет извещение о посылке. Перед оплатой вы можете оценить состояние коробки: вес, целостность. Вскрывать коробку самостоятельно вы можете только после оплаты заказа. Один заказ может содержать не больше 10 позиций и его стоимость не должна превышать 100 000 р.

































































































































