Ваш идеальный выбор для современной ванной комнаты — это комплект "Унитаз подвесной Ceramicanova Play CN3001 с микролифтом, безободковый + Инсталляция EWRIKA ProLT 0026-2020 + Кнопка 0054 черная матовая". Это не просто сантехника, а воплощение итальянского качества и инновационных решений. Каждый элемент набора продуман до мелочей, чтобы обеспечить вам максимальный комфорт и удобство в использовании.
Почему выбирают комплекты с унитазом Ceramicanova
- Компактный дизайн безободкового унитаза делает уборку проще и гигиеничнее.
- Система плавного опускания предотвращает резкие удары и шум при закрывании сиденья.
- Современная система инсталляции EWRIKA обеспечивает надежность и долговечность.
- Черная матовая кнопка удобна и эстетически привлекательна.
Краткая информация об изделии
Унитаз подвесной модели Ceramicanova Play CN3001 выполнен в фаянсе и имеет горизонтальный выпуск в стену, что упрощает установку. Оборудован безободковой конструкцией, что облегчает уборку и поддерживает высокий уровень гигиены в туалетной комнате. Микролифт нежно опустит крышку с сиденьем, изготовленным из нецарапаемого и устойчивого к бытовой химии дюропласта.
Система инсталляции EWRIKA ProLT 0026-2020 крепится к капитальной стене и обеспечивает экономию воды за счет двухрежимной системы смыва (3 и 6 литров). Благодаря шумоизоляции обеспечивает тихий слив и набор воды. Расчетная нагрузка до 400 кг подталкивает на уверенный выбор именно этой модели.
Кнопка EWRIKA 0054 в черном матовом исполнении не оставляет следы от пальцев, стойкая к царапинам и рассчитана на более чем 100 000 нажатий, обеспечивая долгий срок службы.
Что нужно знать перед покупкой
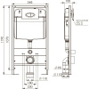
При выборе данного комплекта стоит учесть особенности установки: система инсталляции крепится в капитальную стену с монтажной глубиной 10 см и высотой 107 см. Подробные инструкции по монтажу позволят быстро и без проблем установить комплект в вашей ванной комнате. Обратите внимание на межосевое расстояние под шпильки— 18 и 23 см.
Высокое качество подтверждается гарантиями: 25 лет на керамику унитаза и 5 лет на систему инсталляции. Оцените комфорт и долговечность этой продукции, созданной для вашего удобства и эстетики ванной комнаты.
Для покупки товара в нашем интернет-магазине выберите понравившийся товар и добавьте его в корзину. Далее перейдите в Корзину и нажмите на «Оформить заказ» или «Быстрый заказ».
Когда оформляете быстрый заказ, напишите ФИО, телефон и e-mail. Вам перезвонит менеджер и уточнит условия заказа. По результатам разговора вам придет подтверждение оформления товара на почту или через СМС. Теперь останется только ждать доставки и радоваться новой покупке.
Оформление заказа в стандартном режиме выглядит следующим образом. Заполняете полностью форму по последовательным этапам: адрес, способ доставки, оплаты, данные о себе. Советуем в комментарии к заказу написать информацию, которая поможет курьеру вас найти. Нажмите кнопку «Оформить заказ».
Оплачивайте покупки удобным способом. В интернет-магазине доступно 3 варианта оплаты:
- Наличные при самовывозе или доставке курьером. Специалист свяжется с вами в день доставки, чтобы уточнить время и заранее подготовить сдачу с любой купюры. Вы подписываете товаросопроводительные документы, вносите денежные средства, получаете товар и чек.
- Безналичный расчет при самовывозе или оформлении в интернет-магазине: карты Visa и MasterCard. Чтобы оплатить покупку, система перенаправит вас на сервер системы ASSIST. Здесь нужно ввести номер карты, срок действия и имя держателя.
- Электронные системы при онлайн-заказе: PayPal, WebMoney и Яндекс.Деньги. Для совершения покупки система перенаправит вас на страницу платежного сервиса. Здесь необходимо заполнить форму по инструкции.
Экономьте время на получении заказа. В интернет-магазине доступно 4 варианта доставки:
- Курьерская доставка работает с 9.00 до 19.00. Когда товар поступит на склад, курьерская служба свяжется для уточнения деталей. Специалист предложит выбрать удобное время доставки и уточнит адрес. Осмотрите упаковку на целостность и соответствие указанной комплектации.
- Самовывоз из магазина. Список торговых точек для выбора появится в корзине. Когда заказ поступит на склад, вам придет уведомление. Для получения заказа обратитесь к сотруднику в кассовой зоне и назовите номер.
- Постамат. Когда заказ поступит на точку, на ваш телефон или e-mail придет уникальный код. Заказ нужно оплатить в терминале постамата. Срок хранения — 3 дня.
- Почтовая доставка через почту России. Когда заказ придет в отделение, на ваш адрес придет извещение о посылке. Перед оплатой вы можете оценить состояние коробки: вес, целостность. Вскрывать коробку самостоятельно вы можете только после оплаты заказа. Один заказ может содержать не больше 10 позиций и его стоимость не должна превышать 100 000 р.

































































































































