Перезагрузите комфорт своей ванной комнаты с инновационным комплектом от бренда Керамин, включающим в себя подвесной унитаз Гранд R МЛ CDB00022814 и систему инсталляции Grohe Rapid SL 38772001. Этот дуэт не только обеспечивает незаменимую функциональность, но и придаёт помещению утончённую эстетичность.
Почему выбирают комплект унитаза и инсталляции от Керамин и Grohe?
- Безободковая конструкция повышает гигиеничность и облегчает уборку.
- Система экономии воды благодаря двойному режиму слива.
- Крышка-сиденье с микролифтом обеспечивает дополнительное удобство.
- Пневмоуправление снижает уровень шума до шепота.
- Устойчивость к нагрузке до 400 кг для безупречной надёжности.
Краткая информация об изделии
Унитаз подвесной Керамин Гранд R МЛ CDB00022814 изготовлен из прочного фарфора и имеет горизонтальный выпуск, что позволяет легко установить его в любую капитальную стену. Безободковая конструкция и антипригарное покрытие делают его идеальным выбором для тех, кто ценит чистоту и практичность. Крышка из дюропласта устойчива к бытовой химии и не подвержена появлению царапин. Плавный механизм опускания и возможность легкого снятия сиденья добавляют к удобству в использовании.
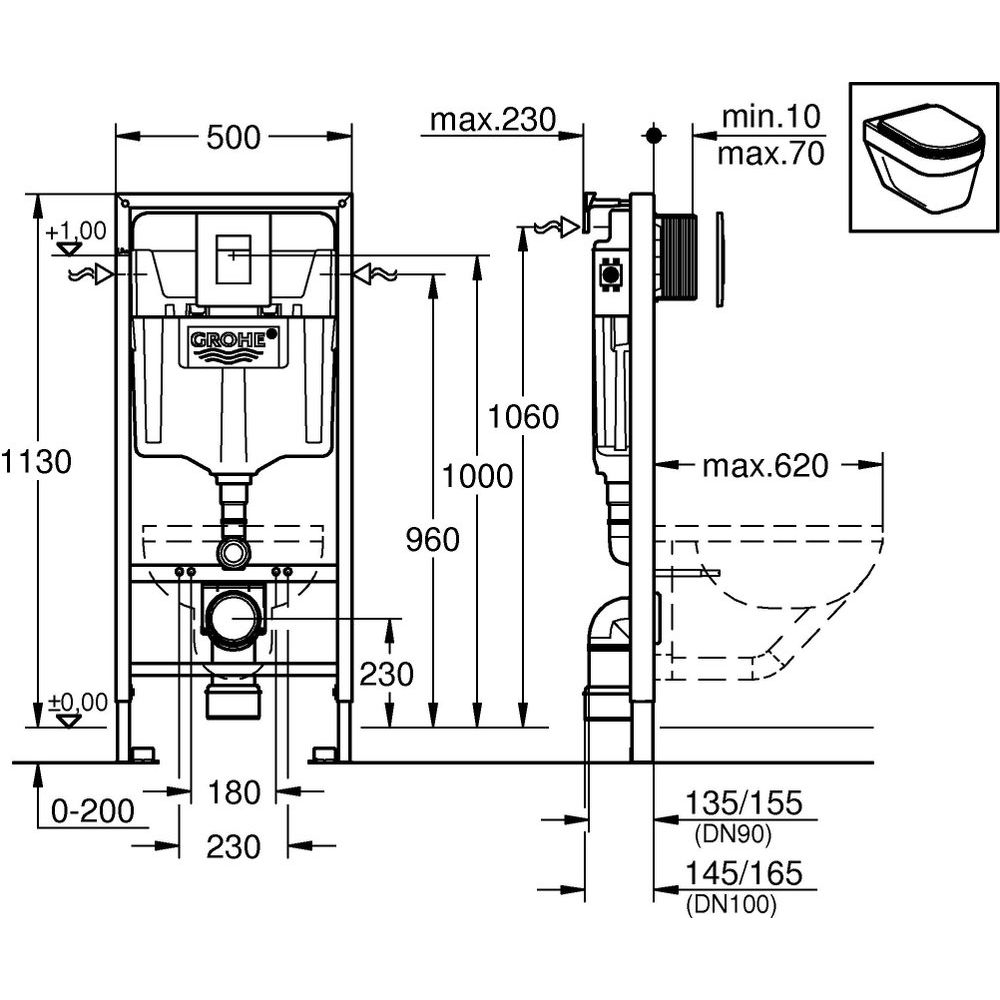
Система инсталляции Grohe Rapid SL 38772001 крепится в капитальную стену и пол, предлагая два режима слива: полный (6 л) и частичный (3 л). Это не только экономит воду, но и позволяет индивидуально настраивать систему для вашего удобства. Пневматическая кнопка смыва может быть установлена на удобном для вас расстоянии, а монтажная глубина всего 23 см делает систему подходящей даже для компактных пространств.
Что нужно знать перед покупкой
Перед установкой стоит учесть необходимость крепления в капитальную стену для обеспечения максимальной надёжности. Обратите внимание, что сервисное обслуживание клапанов осуществляется через окно смывной панели, что исключает необходимость демонтажа всей системы для замены или ремонта. Это минимизирует возможные неудобства и экономит ваше время.
Для покупки товара в нашем интернет-магазине выберите понравившийся товар и добавьте его в корзину. Далее перейдите в Корзину и нажмите на «Оформить заказ» или «Быстрый заказ».
Когда оформляете быстрый заказ, напишите ФИО, телефон и e-mail. Вам перезвонит менеджер и уточнит условия заказа. По результатам разговора вам придет подтверждение оформления товара на почту или через СМС. Теперь останется только ждать доставки и радоваться новой покупке.
Оформление заказа в стандартном режиме выглядит следующим образом. Заполняете полностью форму по последовательным этапам: адрес, способ доставки, оплаты, данные о себе. Советуем в комментарии к заказу написать информацию, которая поможет курьеру вас найти. Нажмите кнопку «Оформить заказ».
Оплачивайте покупки удобным способом. В интернет-магазине доступно 3 варианта оплаты:
- Наличные при самовывозе или доставке курьером. Специалист свяжется с вами в день доставки, чтобы уточнить время и заранее подготовить сдачу с любой купюры. Вы подписываете товаросопроводительные документы, вносите денежные средства, получаете товар и чек.
- Безналичный расчет при самовывозе или оформлении в интернет-магазине: карты Visa и MasterCard. Чтобы оплатить покупку, система перенаправит вас на сервер системы ASSIST. Здесь нужно ввести номер карты, срок действия и имя держателя.
- Электронные системы при онлайн-заказе: PayPal, WebMoney и Яндекс.Деньги. Для совершения покупки система перенаправит вас на страницу платежного сервиса. Здесь необходимо заполнить форму по инструкции.
Экономьте время на получении заказа. В интернет-магазине доступно 4 варианта доставки:
- Курьерская доставка работает с 9.00 до 19.00. Когда товар поступит на склад, курьерская служба свяжется для уточнения деталей. Специалист предложит выбрать удобное время доставки и уточнит адрес. Осмотрите упаковку на целостность и соответствие указанной комплектации.
- Самовывоз из магазина. Список торговых точек для выбора появится в корзине. Когда заказ поступит на склад, вам придет уведомление. Для получения заказа обратитесь к сотруднику в кассовой зоне и назовите номер.
- Постамат. Когда заказ поступит на точку, на ваш телефон или e-mail придет уникальный код. Заказ нужно оплатить в терминале постамата. Срок хранения — 3 дня.
- Почтовая доставка через почту России. Когда заказ придет в отделение, на ваш адрес придет извещение о посылке. Перед оплатой вы можете оценить состояние коробки: вес, целостность. Вскрывать коробку самостоятельно вы можете только после оплаты заказа. Один заказ может содержать не больше 10 позиций и его стоимость не должна превышать 100 000 р.

































































































































