Позвольте представить вам идеальное сочетание стиля и функциональности — комплект унитаза Laufen Basal в тандеме с инсталляцией Grohe Solido и шумоизоляцией. Это гармоничный дуэт элегантного швейцарского дизайна и надежного немецкого качества. Комплекс сочетает инновационные технологии, гарантируя комфорт и гигиеничность, которые будут радовать вас каждый день.
Почему выбирают комплекты с инсталляцией Grohe и унитазами Laufen
- Изысканный швейцарский дизайн гармонично сочетается с передовыми инновациями.
- Инсталляция Grohe Solido обеспечивает надежность и долговечность, выдерживая до 400 кг нагрузки.
- Экономия воды с возможностью регулировки слива от 3 до 6 литров.
- Пневматическое управление смывом для бесшумной работы, а также удобства монтажа в любом интерьере.
- Удобство ухода благодаря безободковой конструкции и съемной крышке-сиденью.
Краткая информация об изделии
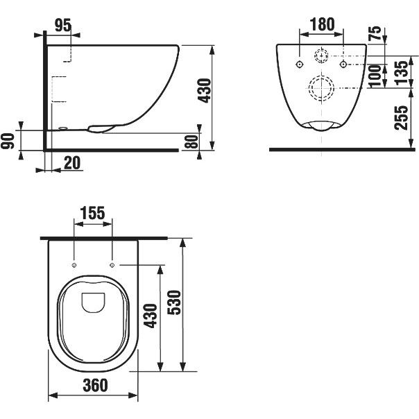
Унитаз Laufen Basal, выполненный из фарфора, отличается горизонтальным выпуском и уникальной формой воронки, предотвращающей образование брызг. Версия с микролифтом оснащена дюропластовой крышкой, устойчивой к царапинам и воздействию бытовой химии. Швейцарское происхождение изделия подтверждается 5-летней гарантией.
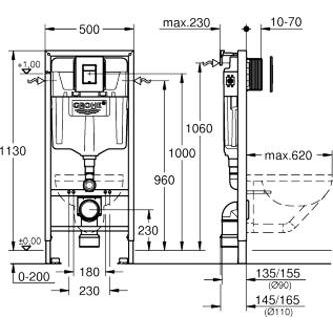
Система инсталляции Grohe Solido включает варианты регулировки для полного или частичного слива. Установка возможна с подключением воды сбоку, сзади и оснащена шумоизоляцией, значительно снижая уровень шума при эксплуатации.
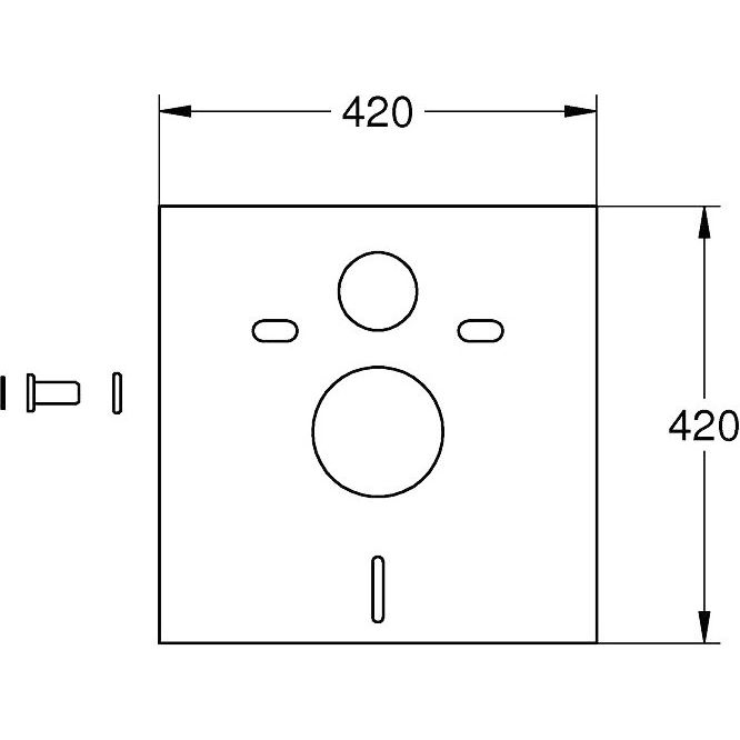
Шумоизоляционная панель из пластика дополнительно оптимизирует акустику помещения и повышает комфорт использования.
Что нужно знать перед покупкой
При установке инсталляции Grohe Solido учитывайте монтажные параметры: межосевое расстояние под крепежные шпильки варьируется от 18 до 23 см, а монтажная глубина составляет 23 см. Обслуживание инсталляции осуществляется через окно смывной панели, исключая необходимость демонтажа для ремонта. Вам не потребуется специального инструмента, чтобы установить или регулировать высоту унитаза.
Для покупки товара в нашем интернет-магазине выберите понравившийся товар и добавьте его в корзину. Далее перейдите в Корзину и нажмите на «Оформить заказ» или «Быстрый заказ».
Когда оформляете быстрый заказ, напишите ФИО, телефон и e-mail. Вам перезвонит менеджер и уточнит условия заказа. По результатам разговора вам придет подтверждение оформления товара на почту или через СМС. Теперь останется только ждать доставки и радоваться новой покупке.
Оформление заказа в стандартном режиме выглядит следующим образом. Заполняете полностью форму по последовательным этапам: адрес, способ доставки, оплаты, данные о себе. Советуем в комментарии к заказу написать информацию, которая поможет курьеру вас найти. Нажмите кнопку «Оформить заказ».
Оплачивайте покупки удобным способом. В интернет-магазине доступно 3 варианта оплаты:
- Наличные при самовывозе или доставке курьером. Специалист свяжется с вами в день доставки, чтобы уточнить время и заранее подготовить сдачу с любой купюры. Вы подписываете товаросопроводительные документы, вносите денежные средства, получаете товар и чек.
- Безналичный расчет при самовывозе или оформлении в интернет-магазине: карты Visa и MasterCard. Чтобы оплатить покупку, система перенаправит вас на сервер системы ASSIST. Здесь нужно ввести номер карты, срок действия и имя держателя.
- Электронные системы при онлайн-заказе: PayPal, WebMoney и Яндекс.Деньги. Для совершения покупки система перенаправит вас на страницу платежного сервиса. Здесь необходимо заполнить форму по инструкции.
Экономьте время на получении заказа. В интернет-магазине доступно 4 варианта доставки:
- Курьерская доставка работает с 9.00 до 19.00. Когда товар поступит на склад, курьерская служба свяжется для уточнения деталей. Специалист предложит выбрать удобное время доставки и уточнит адрес. Осмотрите упаковку на целостность и соответствие указанной комплектации.
- Самовывоз из магазина. Список торговых точек для выбора появится в корзине. Когда заказ поступит на склад, вам придет уведомление. Для получения заказа обратитесь к сотруднику в кассовой зоне и назовите номер.
- Постамат. Когда заказ поступит на точку, на ваш телефон или e-mail придет уникальный код. Заказ нужно оплатить в терминале постамата. Срок хранения — 3 дня.
- Почтовая доставка через почту России. Когда заказ придет в отделение, на ваш адрес придет извещение о посылке. Перед оплатой вы можете оценить состояние коробки: вес, целостность. Вскрывать коробку самостоятельно вы можете только после оплаты заказа. Один заказ может содержать не больше 10 позиций и его стоимость не должна превышать 100 000 р.

































































































































