Комплект подвесного унитаза STWORKI Дублин с инсталляцией EWRIKA ProLT и хромированной кнопкой смыва является отличным выбором для тех, кто стремится создать стильный и функциональный санузел. Надежная конструкция и современный дизайн сочетаются здесь с инновационными технологиями, что позволяет обеспечить максимальный комфорт и удобство использования. Качественные материалы, использованные в производстве, гарантируют долговечность и устойчивость к механическим повреждениям, сохраняя внешний вид изделия на долгие годы.
Почему выбирают Комплект с унитазом EWRIKA
- Ультратонкое и прочное сиденье из дюропласта, которое не царапается и устойчиво к бытовой химии
- Тихий и экономный слив с двумя режимами для полного и частичного слива
- Высокая прочность и защита от конденсата инсталляции, выдерживает нагрузку до 400 кг
- Легкость монтажа и стильный дизайн кнопки с хромированным покрытием
- Длительная гарантия на все элементы комплекта: до 10 лет
Краткая информация об изделии
Подвесной унитаз STWORKI Дублин оснащен горизонтальным выпуском в стену и механизмом плавного опускания крышки. Изготовлен из фаянса и включает комплект с сиденьем, изготовленным из дюропласта, который не желтеет и не царапается. Скрытая система монтажа предоставляет чистый внешний вид.
Система инсталляции EWRIKA ProLT 0026-2020 крепится в капитальную стену и пол, обладает экономным смывом с двумя кнопками для слива объемом на 3 и 6 литров. Благодаря шумоизоляции и уникальному механизму, система работает тихо и надежно.
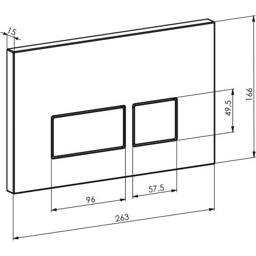
Кнопка смыва EWRIKA 0041 изготовлена из термопластика, что обеспечивает стойкость к царапинам и ударам. Габариты кнопки составляют 26.3x16.6 см, она рассчитана на более чем 100 000 нажатий и бесшумную работу.
Что нужно знать перед покупкой
Перед установкой важно учесть технические параметры, такие как монтажная глубина инсталляции в 10 см и высота крепления до 107 см. Необходимо убедиться в надежности крепления к капитальной стене и соблюдении межосевого расстояния для крепежных шпилек (18 или 23 см). Дюропластовое сиденье предлагает долговечность, но важно соблюдать инструкции по уходу. Комплект поставляется в разобранном виде и требует профессиональной установки для правильного функционирования и сохранения гарантии.
Для покупки товара в нашем интернет-магазине выберите понравившийся товар и добавьте его в корзину. Далее перейдите в Корзину и нажмите на «Оформить заказ» или «Быстрый заказ».
Когда оформляете быстрый заказ, напишите ФИО, телефон и e-mail. Вам перезвонит менеджер и уточнит условия заказа. По результатам разговора вам придет подтверждение оформления товара на почту или через СМС. Теперь останется только ждать доставки и радоваться новой покупке.
Оформление заказа в стандартном режиме выглядит следующим образом. Заполняете полностью форму по последовательным этапам: адрес, способ доставки, оплаты, данные о себе. Советуем в комментарии к заказу написать информацию, которая поможет курьеру вас найти. Нажмите кнопку «Оформить заказ».
Оплачивайте покупки удобным способом. В интернет-магазине доступно 3 варианта оплаты:
- Наличные при самовывозе или доставке курьером. Специалист свяжется с вами в день доставки, чтобы уточнить время и заранее подготовить сдачу с любой купюры. Вы подписываете товаросопроводительные документы, вносите денежные средства, получаете товар и чек.
- Безналичный расчет при самовывозе или оформлении в интернет-магазине: карты Visa и MasterCard. Чтобы оплатить покупку, система перенаправит вас на сервер системы ASSIST. Здесь нужно ввести номер карты, срок действия и имя держателя.
- Электронные системы при онлайн-заказе: PayPal, WebMoney и Яндекс.Деньги. Для совершения покупки система перенаправит вас на страницу платежного сервиса. Здесь необходимо заполнить форму по инструкции.
Экономьте время на получении заказа. В интернет-магазине доступно 4 варианта доставки:
- Курьерская доставка работает с 9.00 до 19.00. Когда товар поступит на склад, курьерская служба свяжется для уточнения деталей. Специалист предложит выбрать удобное время доставки и уточнит адрес. Осмотрите упаковку на целостность и соответствие указанной комплектации.
- Самовывоз из магазина. Список торговых точек для выбора появится в корзине. Когда заказ поступит на склад, вам придет уведомление. Для получения заказа обратитесь к сотруднику в кассовой зоне и назовите номер.
- Постамат. Когда заказ поступит на точку, на ваш телефон или e-mail придет уникальный код. Заказ нужно оплатить в терминале постамата. Срок хранения — 3 дня.
- Почтовая доставка через почту России. Когда заказ придет в отделение, на ваш адрес придет извещение о посылке. Перед оплатой вы можете оценить состояние коробки: вес, целостность. Вскрывать коробку самостоятельно вы можете только после оплаты заказа. Один заказ может содержать не больше 10 позиций и его стоимость не должна превышать 100 000 р.

































































































































