Откройте для себя идеальное сочетание стиля и функциональности с комплектом унитаза STWORKI Ноттвиль и надежной инсталляцией Grohe Solido. Чёрное безободковое решение в стиле минимализма поможет не только эффективно использовать пространство вашей ванной комнаты, но и добавит элегантности её дизайну. Удобный и современный подход к совершенству ванной комнаты ждёт вас здесь и сейчас.
Почему выбирают комплекты с инсталляцией Grohe и унитазы STWORKI
- Эстетика и простота ухода благодаря скрытой системе монтажа и безободковой конструкции.
- Антибактериальное покрытие Hygiene предотвращает рост бактерий и плесени.
- Ультратонкое сиденье с микролифтом обеспечивает комфорт и тишину.
- Надежная система интеграции инсталляций Grohe выдерживает нагрузку до 400 кг и предлагает бесшумное пневмоуправление.
- Экономия воды за счет двухрежимного смыва позволяет выбрать оптимальный расход — от 3 до 6 литров.
Краткая информация об изделии
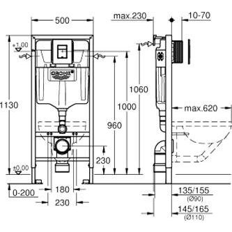
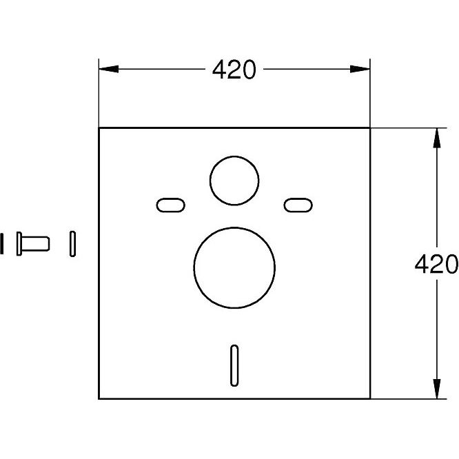
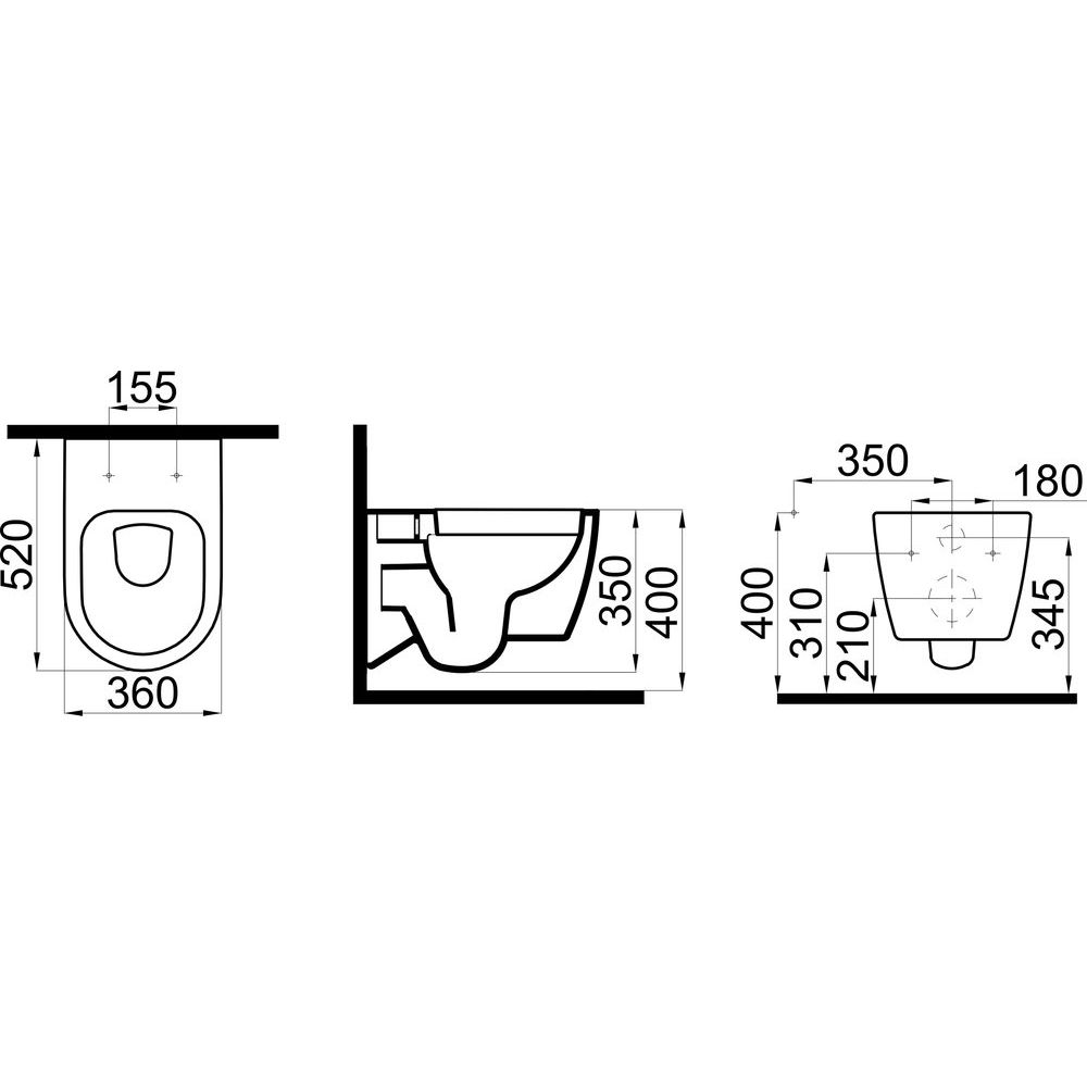
Подвесной унитаз STWORKI Ноттвиль представлен в стильном чёрном цвете и выполнен из качественного фаянса. Он подходит для настенной установки с горизонтальным выпуском и сиденьем из полипропилена с механизмом плавного опускания. Система инсталляции Grohe Solido крепится к капитальной стене и полу, и оснащается пневматической кнопкой смыва, которую можно устанавливать на разных расстояниях, а также регулируемой системой смыва на 3 и 6 литров.
Шумоизоляционная панель Grohe способствует значительному снижению уровня шума, улучшая комфорт использования.
Что нужно знать перед покупкой
При выборе данного комплекта учтите, что инсталляции требуют крепления к капитальной стене, что следует учитывать при планировке ванной комнаты. Возможность регулировки давления смыва и бесшумное пневмоуправление повысят комфортабельность использования. Черный цвет унитаза может требовать внимания в плане подбора остальной сантехники, чтобы все элементы гармонично вписывались в общую концепцию помещения. Гарантия на керамику составляет 10 лет, что свидетельствует о высокой надёжности и долговечности товара.
Для покупки товара в нашем интернет-магазине выберите понравившийся товар и добавьте его в корзину. Далее перейдите в Корзину и нажмите на «Оформить заказ» или «Быстрый заказ».
Когда оформляете быстрый заказ, напишите ФИО, телефон и e-mail. Вам перезвонит менеджер и уточнит условия заказа. По результатам разговора вам придет подтверждение оформления товара на почту или через СМС. Теперь останется только ждать доставки и радоваться новой покупке.
Оформление заказа в стандартном режиме выглядит следующим образом. Заполняете полностью форму по последовательным этапам: адрес, способ доставки, оплаты, данные о себе. Советуем в комментарии к заказу написать информацию, которая поможет курьеру вас найти. Нажмите кнопку «Оформить заказ».
Оплачивайте покупки удобным способом. В интернет-магазине доступно 3 варианта оплаты:
- Наличные при самовывозе или доставке курьером. Специалист свяжется с вами в день доставки, чтобы уточнить время и заранее подготовить сдачу с любой купюры. Вы подписываете товаросопроводительные документы, вносите денежные средства, получаете товар и чек.
- Безналичный расчет при самовывозе или оформлении в интернет-магазине: карты Visa и MasterCard. Чтобы оплатить покупку, система перенаправит вас на сервер системы ASSIST. Здесь нужно ввести номер карты, срок действия и имя держателя.
- Электронные системы при онлайн-заказе: PayPal, WebMoney и Яндекс.Деньги. Для совершения покупки система перенаправит вас на страницу платежного сервиса. Здесь необходимо заполнить форму по инструкции.
Экономьте время на получении заказа. В интернет-магазине доступно 4 варианта доставки:
- Курьерская доставка работает с 9.00 до 19.00. Когда товар поступит на склад, курьерская служба свяжется для уточнения деталей. Специалист предложит выбрать удобное время доставки и уточнит адрес. Осмотрите упаковку на целостность и соответствие указанной комплектации.
- Самовывоз из магазина. Список торговых точек для выбора появится в корзине. Когда заказ поступит на склад, вам придет уведомление. Для получения заказа обратитесь к сотруднику в кассовой зоне и назовите номер.
- Постамат. Когда заказ поступит на точку, на ваш телефон или e-mail придет уникальный код. Заказ нужно оплатить в терминале постамата. Срок хранения — 3 дня.
- Почтовая доставка через почту России. Когда заказ придет в отделение, на ваш адрес придет извещение о посылке. Перед оплатой вы можете оценить состояние коробки: вес, целостность. Вскрывать коробку самостоятельно вы можете только после оплаты заказа. Один заказ может содержать не больше 10 позиций и его стоимость не должна превышать 100 000 р.

































































































































